Skip the navigation and jump to this page's content.

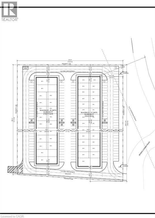
85 Bonds Corner Road Unit# 19 Woodstock, Ontario

PROPERTY INFO

Bonds Corner Plaza presents a compelling pre-construction commercial investment opportunity in a prime Woodstock location, directly across from Toyota. Scheduled for completion by April 30, 2026, this unit benefits from strong fundamentals including high traffic exposure, excellent visibility, and proven rental demand in the area. Strategically positioned with quick access to Highway 401, nearby residential communities, industrial corridors, and major employment hubs, the property is well suited for stable cash flow and long-term appreciation. An excellent opportunity to secure a quality asset in a growing commercial node. (id:4555)

PROPERTY SPECS

Price $569,999
City Woodstock, Ontario
Address 85 BONDS CORNER Road Unit# 19
Listing ID 40802756
Square Footage 869
Type Industrial/Commercial
Status For Sale

EXTENDED FEATURES

Subtype Retail Community Features High Traffic Area, Industrial Park Features Visual exposure Ownership Freehold Basement None Sewer Municipal sewage system



team photo
Windsor: 519-903-9355
Toronto: 905-220-7333
Office: 905-335-3042

REQUEST MORE INFORMATION

Grocery Stores
Schools
Restaurants
Gas Stations
Banks
Parks
Transit
Police
Fire Station
Place of Worship
Please select an amenity above to view a list.





team photo

Connect with Us

Loading...