Skip the navigation and jump to this page's content.

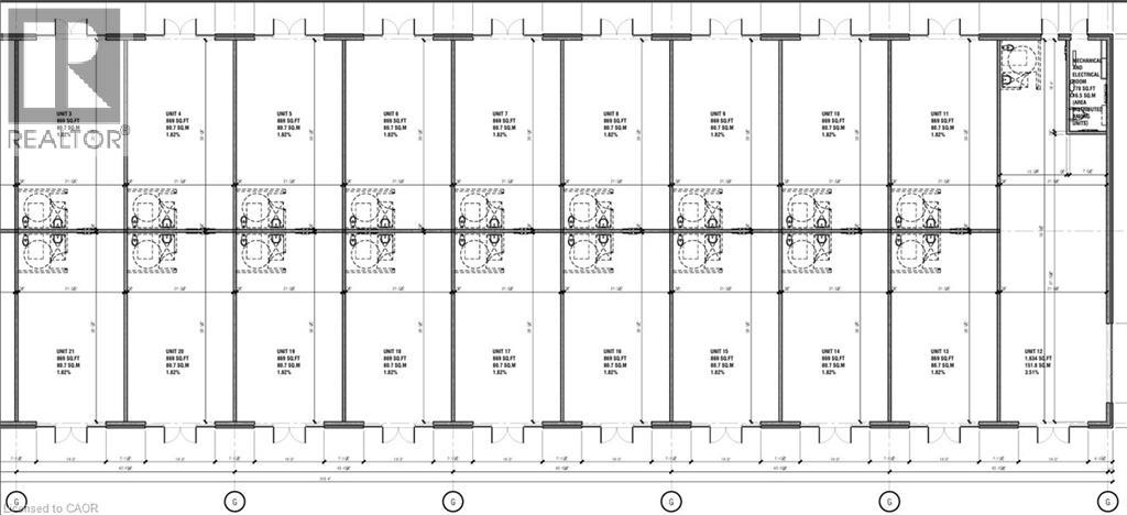
85 Bonds Corner Unit# 7 Woodstock, Ontario

PROPERTY INFO

Welcome to Bonds Corner Plaza, ideally located in Woodstock directly across from Toyota. This stunning pre-construction commercial unit is scheduled for completion by April 30, 2026. Whether you are looking to open your own business or add a strong asset to your investment portfolio, this unit offers excellent potential with solid rental demand in the area. Featuring a prime high-traffic location and convenient access to Highway 401, nearby subdivisions, industrial facilities, and major employment hubs, this is an exceptional opportunity you won’t want to miss. (id:4555)

PROPERTY SPECS

Price $525,900
City Woodstock, Ontario
Address 85 BONDS CORNER Unit# 7
Listing ID 40799375
Square Footage 869
Type Industrial/Commercial
Status For Sale

EXTENDED FEATURES

Subtype Retail Community Features High Traffic Area, Industrial Park Features Visual exposure Ownership Freehold Basement None Sewer Municipal sewage system



team photo
Windsor: 519-903-9355
Toronto: 905-220-7333
Office: 905-335-3042

REQUEST MORE INFORMATION

Grocery Stores
Schools
Restaurants
Gas Stations
Banks
Parks
Transit
Police
Fire Station
Place of Worship
Please select an amenity above to view a list.





team photo

Connect with Us

Loading...