Skip the navigation and jump to this page's content.

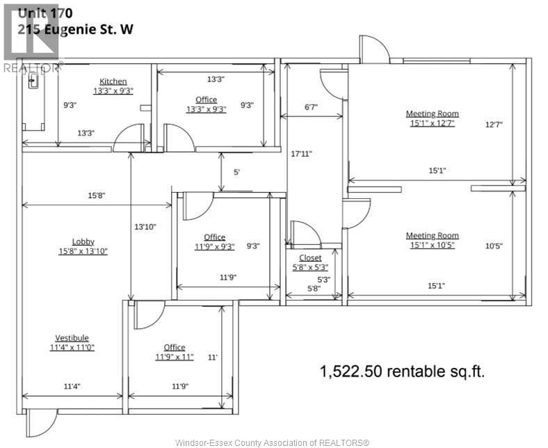
215 Eugenie Street Unit# 170 Windsor, Ontario

PROPERTY INFO

This spacious 1,523 sq. ft. professional office suite is now available for lease. Situated in a central, high-demand location within a prestigious office building, it's surrounded by a variety of complementary businesses and professional services. Enjoy easy access to a wide range of nearby restaurants, shops, and amenities, providing convenience for both employees and clients. Utilities are included in the additional rent. (id:4555)

PROPERTY SPECS

Lease $12
City Windsor, Ontario
Address 215 EUGENIE Street Unit# 170
Listing ID 26006779
Flooring Ceramic/Porcelain
Type Industrial/Commercial
Status For Lease

EXTENDED FEATURES

Subtype Industrial Ownership Freehold Heating / Cooling Forced air, Natural gas, Furnace



team photo
Windsor: 519-903-9355
Toronto: 905-220-7333
Office: 905-335-3042

REQUEST MORE INFORMATION

Grocery Stores
Schools
Restaurants
Gas Stations
Banks
Parks
Transit
Police
Fire Station
Place of Worship
Please select an amenity above to view a list.





team photo

Connect with Us

Loading...