Skip the navigation and jump to this page's content.

670 Gordon Street Unit# 312 Whitby, Ontario

$2,700
2 Beds
  1 Full

PROPERTY INFO

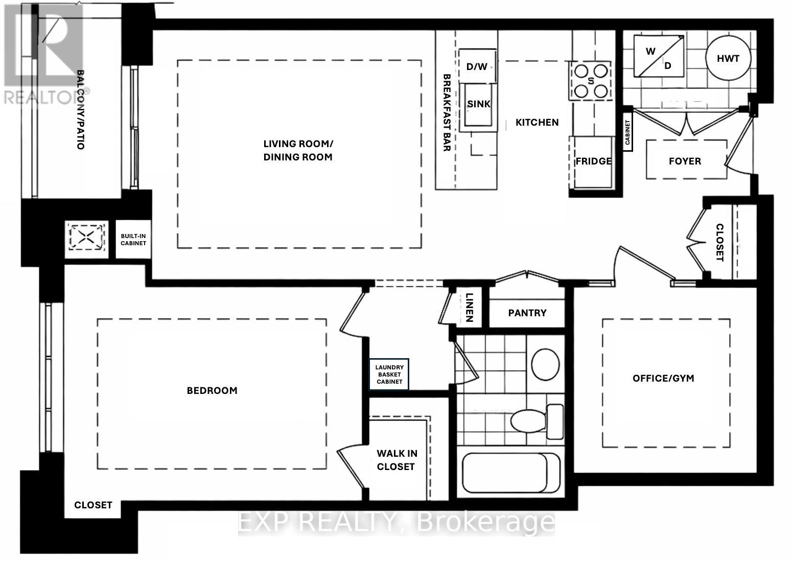
Welcome to luxury lakeside living at 670 Gordon Street a beautifully designed partially furnished 1+1 suite offering comfort, style, and flexibility. This spacious layout includes a dedicated office and a rare in-suite gym area (weights included).The upgraded kitchen features black stainless steel appliances, a double sink, breakfast bar, and a full pantry with built-in spice racks perfect for everyday living. The bright open-concept space is enhanced by elegant white oak flooring and pot lights throughout. Unwind on your private balcony, or relax in the thoughtfully designed primary bedroom with, wall sconces, ceiling fan, and excellent storage. Enjoy a modern 4-piece bath, ensuite laundry with built-in storage, a walk-in closet, and custom built-ins for optimal organization. Residents benefit from shared BBQ amenities and a welcoming community atmosphere. Unbeatable location minutes to Whitby GO Station, Highway 401, and directly across from Whitby Yacht Club. Walk to Iroquois Beach, waterfront trails, parks, shops, dining, Tim Hortons, and the Abilities Centre everything at your doorstep. Tenant requirements Rental application, proof of income, references, and full credit report. Upon acceptance, first and last month's rent and tenant insurance with liability coverage are required. (id:4555)

PROPERTY SPECS

Lease $2,700
City Whitby, Ontario
Bed / Bath 2 / 1 Full
Address 670 Gordon Street Unit# 312
Listing ID E13043658
Style Apartment
Flooring Hardwood
Parking 1.00
Type Condominium
Status For Lease

EXTENDED FEATURES

Subtype Single Family Community Features Pets Allowed With Restrictions Features Balcony, Carpet Free, In suite Laundry Ownership Leasehold Basement None Heating / Cooling Forced air, Natural gas Parking 1.00



team photo
Windsor: 519-903-9355
Toronto: 905-220-7333
Office: 905-335-3042

REQUEST MORE INFORMATION

Grocery Stores
Schools
Restaurants
Gas Stations
Banks
Parks
Transit
Police
Fire Station
Place of Worship
Please select an amenity above to view a list.





team photo

Connect with Us

Loading...