Skip the navigation and jump to this page's content.

805 Athol Street Whitby, Ontario

$1,459,000
5 Beds
  4 Full / 1 Half

PROPERTY INFO

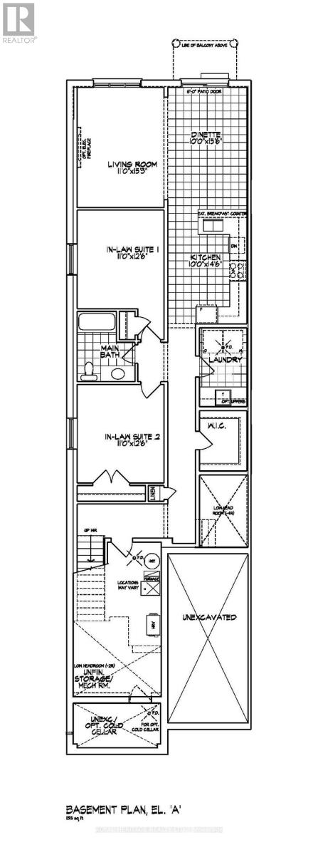
Plan ahead-invest in your future! This legal duplex, semi-detached style bungalow is finished top to bottom and offers exceptional versatility for homeowners and investors alike. The main floor features 9 ft ceilings, 3 spacious bedrooms, 3 bathrooms, and an open-concept kitchen with a walk-out to a deck overlooking Peel Park-complete with tennis courts, soccer fields, a baseball diamond, and more. Situated on a premium lot, the property also offers 4-car parking and separate utilities. The lower level includes a well-designed legal basement apt with 2 bedrooms, an open-concept living/family room, and a custom kitchen, along with a walk-out to a large backyard. Equipped with separate furnaces and meters, this home is ideal for multigenerational living or maximizing rental income. Live in one unit and rent the other, or lease both-a smart investment with strong income potential. Located in a highly desirable, family-friendly neighbourhood, just steps to parks, schools, shopping, restaurants, and everyday amenities, with easy access to Highways 401, 412, and 407 and public transit. (id:4555)

PROPERTY SPECS

Price $1,459,000
City Whitby, Ontario
Bed / Bath 5 / 4 Full, 1 Half
Address 805 Athol Street
Listing ID E12914042
Style Bungalow, Duplex
Flooring Hardwood, Carpeted, Porcelain Tile
Parking 4.00
Type Multi-Family
Status For Sale

EXTENDED FEATURES

Ownership Freehold Basement Finished, Apartment in basement, Separate entrance, Walk out, N/A Heating / Cooling Forced air, Natural gas Sewer Sanitary sewer Parking 4.00



team photo
Windsor: 519-903-9355
Toronto: 905-220-7333
Office: 905-335-3042

REQUEST MORE INFORMATION

Grocery Stores
Schools
Restaurants
Gas Stations
Banks
Parks
Transit
Police
Fire Station
Place of Worship
Please select an amenity above to view a list.





team photo

Connect with Us

Loading...