Skip the navigation and jump to this page's content.

1606 Charles Street Unit# 309 Whitby, Ontario

$2,600
2 Beds
  2 Full

PROPERTY INFO

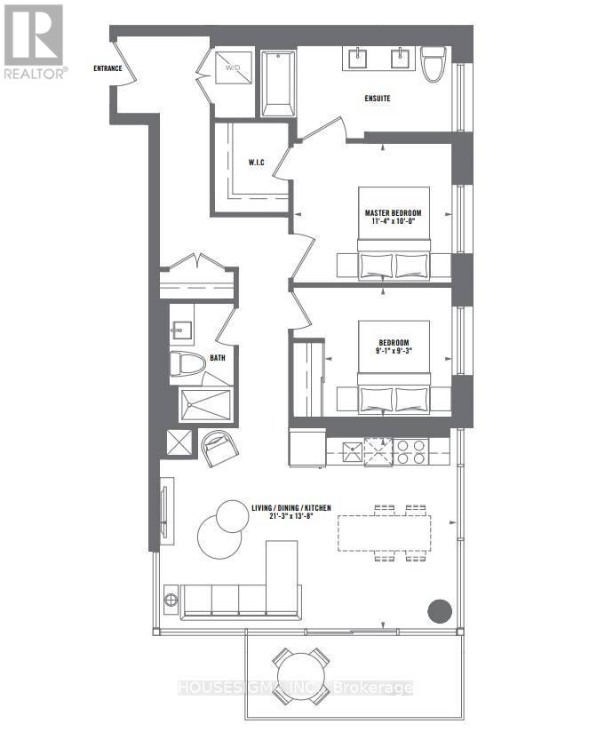
Welcome to The Landings, a sought-after waterfront condominium community nestled in the heart of Port Whitby. Located along the shores of Lake Ontario, The Landings offers an exceptional lifestyle combining natural beauty, modern comfort, and urban convenience. Residents are within walking distance of the Whitby GO and Lake Ontario, can enjoy scenic walking trails, access to nearby marinas, and breathtaking lake views, all just minutes from shopping, dining, transit, and Hwy 400 / 412 / 407. This 2-bedroom / 2-bathroom condo with a N/W exposure and balcony is ideal for professionals, downsizers, and anyone seeking a low-maintenance lifestyle by the water. 1 underground parking spot, 1 locker, and high-speed internet are included. The Landings offers 24-hour concierge services, private workspaces with Wi-Fi, underground parking, a modern gym/yoga room, a well-appointed party room, and ample visitor parking. Experience lakeside living at its finest - where comfort, convenience, and community come together. Tenant is responsible for all utilities, including hydro, water, and heat. (id:4555)

PROPERTY SPECS

Lease $2,600
City Whitby, Ontario
Bed / Bath 2 / 2 Full
Address 1606 Charles Street Unit# 309
Listing ID E12864206
Style Apartment
Flooring Laminate
Parking 1.00
Type Condominium
Status For Lease

EXTENDED FEATURES

Subtype Single Family Community Features Pets Allowed With Restrictions Features Balcony, Carpet Free Ownership Leasehold Basement None Heating / Cooling Heat Pump, Electric Parking 1.00



team photo
Windsor: 519-903-9355
Toronto: 905-220-7333
Office: 905-335-3042

REQUEST MORE INFORMATION

Grocery Stores
Schools
Restaurants
Gas Stations
Banks
Parks
Transit
Police
Fire Station
Place of Worship
Please select an amenity above to view a list.





team photo

Connect with Us

Loading...