Skip the navigation and jump to this page's content.

Hwy 575 West Nipissing, Ontario

PROPERTY INFO

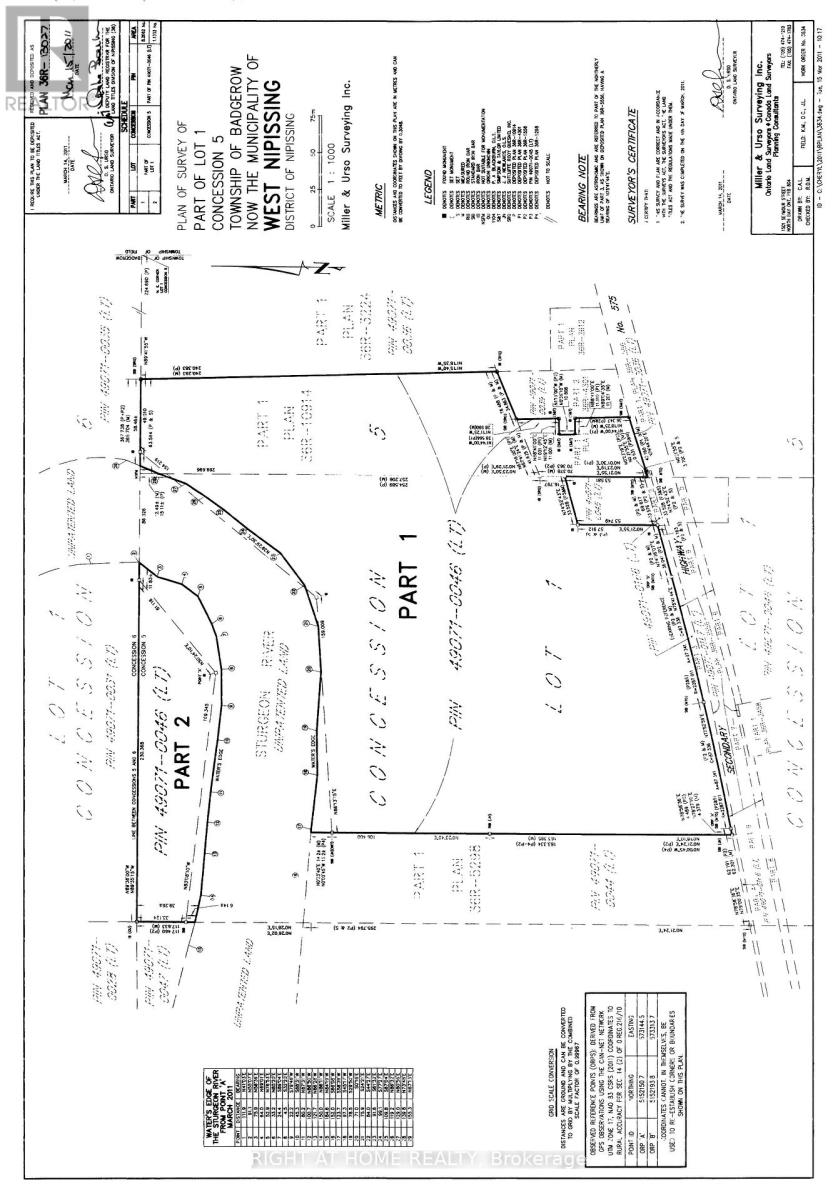
Water Access Only To Your Private Getaway! 2.79 Acres With Sandy Beach & 860 Feet Of Frontage On The Upper Sturgeon River! A Short Boat Ride To Your Own Home Away From Home To Make Memories,Tell Stories By Campfires Or Enjoy A Midnight Swim Under The Stars! A Shed & Nice Trees At The Back With A Higher And Level Area. Miles Of Boating On The River For Fishing & Many Sandy Swimming Areas & Creeks To Canoe. Acres Of Crown Land Nearby, Just A Few Minutes From Boat Launch & General Store For Groceries, Sundries, LCBO And Fresh Bread. Easy Access From Main Highways Between North Bay And Sudbury. 4 Hour Drive From Toronto. Enjoy The Great Outdoors! Note: Property Is Part 2 As Per The Survey. Part 1 Address Is 1783 Hwy 575. Sellers Willing To Hold Mortgage At Reasonable Terms To Be Negotiated. (id:4555)

PROPERTY SPECS

Price $74,900
City West Nipissing, Ontario
Address Hwy 575
Listing ID X12687986
Type Vacant Land
Status For Sale

EXTENDED FEATURES

Features Irregular lot size Ownership Freehold Views Direct Water View



team photo
Windsor: 519-903-9355
Toronto: 905-220-7333
Office: 905-335-3042

REQUEST MORE INFORMATION

Grocery Stores
Schools
Restaurants
Gas Stations
Banks
Parks
Transit
Police
Fire Station
Place of Worship
Please select an amenity above to view a list.





team photo

Connect with Us

Loading...