Skip the navigation and jump to this page's content.

55 Norfolk Street Waterford, Ontario

$615,000
2 Beds
  2 Full

PROPERTY INFO

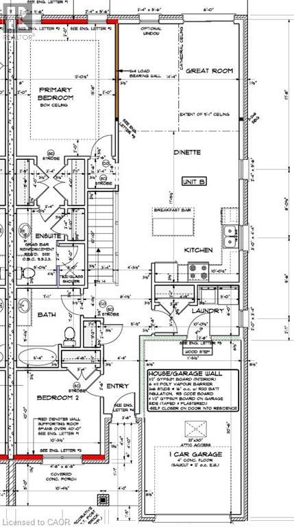
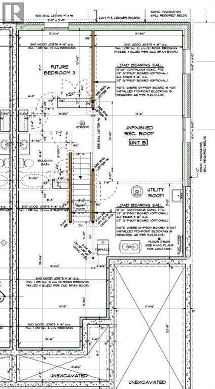
Welcome to 55 Norfolk Street in Waterford. This nearly completed 1,266 sq. ft. semi-detached bungalow offers an affordable opportunity to secure a quality new home with flexible timing. Ideal for buyers starting out or downsizing, this thoughtfully designed bungalow provides comfortable one-floor living with your own yard — and no condo fees. Only three units remain on Norfolk Street. Designed with everyday living in mind, this home features a covered front porch and back deck, along with excellent sound separation thanks to a poured concrete wall between units — a standout feature for privacy and long-term comfort. The open-concept interior includes a spacious great room with patio doors, a dining area, and a custom kitchen finished with quartz countertops, custom cabinetry, a centre island with seating, pot lighting, and modern fixtures. The primary bedroom offers a walk-through closet and a private 3-piece ensuite with tiled shower. A second bedroom provides flexibility as a guest room or den, complemented by a full 4-piece main bath. Main-floor laundry and a mudroom are conveniently located off the garage entry. The full unfinished basement includes large windows and a bathroom rough-in, offering excellent future potential. Additional features include a tankless water heater (owned), central air, forced-air gas furnace, utility sink, sump pump, and fiberglass shingles. Nearly complete — secure now and move in soon. Taxes not yet assessed. Pictures of a similar model for illustration purposes (id:4555)

PROPERTY SPECS

Price $615,000
City Waterford, Ontario
Bed / Bath 2 / 2 Full
Address 55 NORFOLK Street
Listing ID 40802092
Style Bungalow, House
Parking 2.00
Type Residential
Status For Sale

EXTENDED FEATURES

Subtype Single Family Community Features School Bus, Community Centre Features Crushed stone driveway, Sump Pump, Automatic Garage Door Opener Ownership Freehold Basement Unfinished, Full Heating / Cooling Forced air, Natural gas Sewer Municipal sewage system Parking 2.00



team photo
Windsor: 519-903-9355
Toronto: 905-220-7333
Office: 905-335-3042

REQUEST MORE INFORMATION

Grocery Stores
Schools
Restaurants
Gas Stations
Banks
Parks
Transit
Police
Fire Station
Place of Worship
Please select an amenity above to view a list.





team photo

Connect with Us

Loading...