Skip the navigation and jump to this page's content.

69 Norfolk Street Waterford, Ontario

$721,345
2 Beds
  2 Full

PROPERTY INFO

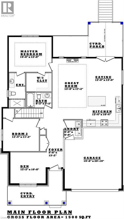
TO BE BUILT — Customize your new home from the ground up. This thoughtfully designed 1,486 sq. ft. bungalow offers an affordable opportunity to own a brand-new, custom-built home with a double-car garage. A covered front entry welcomes you into a spacious foyer with closet, setting the tone for the smart, functional layout throughout. The heart of the home is the bright, open-concept great room featuring a tray ceiling and seamless flow into the kitchen and dining area — perfect for both everyday living and entertaining. The kitchen is designed to impress with custom cabinetry, quartz or granite countertops, an island with seating, and a generous eating area. Patio doors extend the living space outdoors to a covered back deck with an uncovered extension for seasonal enjoyment. The primary suite offers a peaceful retreat with a walk-in closet and a private 3-piece ensuite featuring a tiled shower. Two additional rooms — a second bedroom and a versatile den or third bedroom — provide flexibility for growing families, guests, or a home office, along with a full 4-piece bathroom. Convenient main-floor laundry adds to the ease of single-level living. Additional highlights include central air, an owned water heater, and a double-car garage with automatic door opener. The full, unfinished basement includes a rough-in for a future bathroom, offering a blank canvas to expand your living space as your needs evolve. An exceptional value for a new home of this size. Taxes not yet assessed. Colour photo rendering for illustration purposes only. (id:4555)

PROPERTY SPECS

Price $721,345
City Waterford, Ontario
Bed / Bath 2 / 2 Full
Address 69 NORFOLK Street
Listing ID 40802052
Style Bungalow, House
Fireplace 1.00
Parking 6.00
Type Residential
Status For Sale

EXTENDED FEATURES

Subtype Single Family Community Features Community Centre Features Conservation/green belt, Crushed stone driveway, Sump Pump, Automatic Garage Door Opener Ownership Freehold Basement Unfinished, Full Heating / Cooling Forced air, Natural gas Sewer Sanitary sewer Parking 6.00



team photo
Windsor: 519-903-9355
Toronto: 905-220-7333
Office: 905-335-3042

REQUEST MORE INFORMATION

Grocery Stores
Schools
Restaurants
Gas Stations
Banks
Parks
Transit
Police
Fire Station
Place of Worship
Please select an amenity above to view a list.





team photo

Connect with Us

Loading...