Skip the navigation and jump to this page's content.

43 Norfolk Street Waterford, Ontario

$615,000
2 Beds
  2 Full

PROPERTY INFO

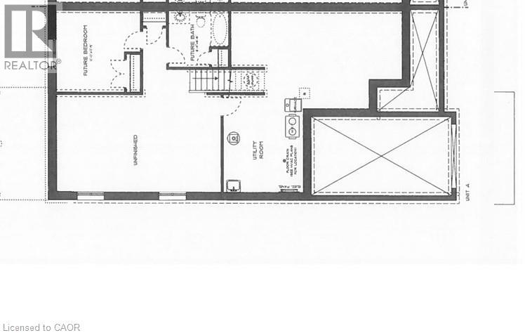
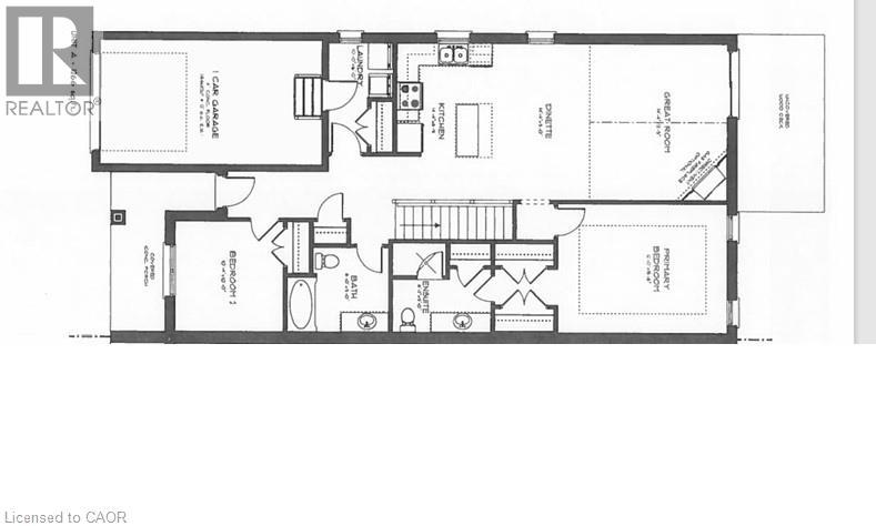
Welcome to 43 Norfolk St., Waterford. Whether starting out or downsizing, this 1266 Sq. Ft. semi-detached home is the perfect option! The perfect answer to having your own yard and your own home, at an affordable price. This is one of 3 remaining available units that are available on Norfolk St. These bungalow homes make living on one floor easy. From the covered front porch right to the back deck you will have all the comforts that a new home offers. Worried about noise from the attached neighbor?....Don't be! This custom home builder separates the units with a poured concrete wall for your added comfort and security. The open concept home has a large great room with patio doors, adjacent to a dinette which flows right to the kitchen with custom cabinetry/quartz counters, Island with seating, pot lights and more. A large primary bedroom has a walk through closet and 3 piece ensuite with tiled shower. The second bedroom can be used as a bedroom or a den and guests have access to the 4 pc main bath. Main floor laundry/mudroom is adjacent to the garage entry for your convenience. The unfinished basement has large windows and a rough in bath for your future development. Tankless water heater (owned), central air, forced air gas furnace, utility sink, sump pump and fiberglass shingles are just some of the features of this quality home. Construction has started but there is still time for some buyer choices. Call now! (taxes not yet assessed) photos of a similar model for demonstration purposes only (id:4555)

PROPERTY SPECS

Price $615,000
City Waterford, Ontario
Bed / Bath 2 / 2 Full
Address 43 NORFOLK Street
Listing ID 40802053
Style Bungalow, House
Parking 2.00
Type Residential
Status For Sale

EXTENDED FEATURES

Subtype Single Family Community Features School Bus, Community Centre Features Crushed stone driveway, Sump Pump, Automatic Garage Door Opener Ownership Freehold Basement Unfinished, Full Heating / Cooling Forced air, Natural gas Sewer Municipal sewage system Parking 2.00



team photo
Windsor: 519-903-9355
Toronto: 905-220-7333
Office: 905-335-3042

REQUEST MORE INFORMATION

Grocery Stores
Schools
Restaurants
Gas Stations
Banks
Parks
Transit
Police
Fire Station
Place of Worship
Please select an amenity above to view a list.





team photo

Connect with Us

Loading...