Skip the navigation and jump to this page's content.

10611 Highway 3 Wainfleet, Ontario

PROPERTY INFO

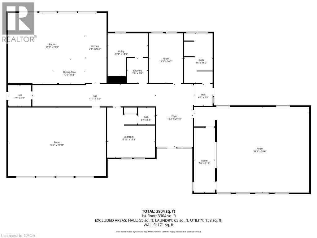
Prime 2.9 acre commercial parcel on Highway 3 featuring a 4,400 sq ft building on I-1 zoned land plus nearly 2 additional acres zoned A4 for future expansion. Excellent opportunity for investors, developers, daycare, medical, institutional or religious use. Ample parking and strong highway exposure. Recent upgrades include new boilers, radiators, water system and LED lighting. Minutes to Port Colborne, Welland and Wainfleet and close to Lake Erie amenities. Exceptional community hub potential with long term appreciation and redevelopment upside. (id:4555)

PROPERTY SPECS

Price $615,000
City Wainfleet, Ontario
Address 10611 HIGHWAY 3
Listing ID 40808137
Square Footage 4400
Type Industrial/Commercial
Status For Sale

EXTENDED FEATURES

Subtype Institutional - Special Purpose Community Features High Traffic Area Ownership Freehold Basement None Sewer Septic System



team photo
Windsor: 519-903-9355
Toronto: 905-220-7333
Office: 905-335-3042

REQUEST MORE INFORMATION

Grocery Stores
Schools
Restaurants
Gas Stations
Banks
Parks
Transit
Police
Fire Station
Place of Worship
Please select an amenity above to view a list.





team photo

Connect with Us

Loading...