Skip the navigation and jump to this page's content.

9000 Jane Street Unit# 1119 Vaughan, Ontario

$2,300
1 Beds
  2 Full / 1 Half

PROPERTY INFO

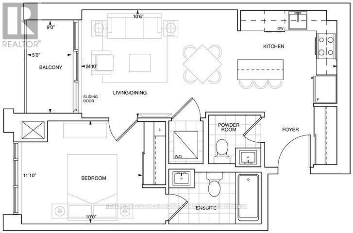
Experience luxury living at CHARISMA West Tower, built by Greenpark. This spacious 1 bedroom, 2 bathroom unit offers approximately 615 square feet of living space. Enjoy an open concept floor plan, laminate flooring, and a modern kitchen with granite countertops and stainless steel appliances. The large primary bedroom features a generous closet and a 4 piece ensuite. Plus, exclusive parking and a storage unit are included. Indulge in the high-end amenities this new building has to offer, including a party room, gym, outdoor pool, outdoor garden, and terrace. Located just minutes away from Cortellucci Hospital, Wonderland, Vaughan Mills Mall, GO Train & Subway (VMCS), as well as a variety of restaurants and coffee shops. Don't miss out on this incredible opportunity for a luxurious lifestyle at CHARISMA West Tower! (id:4555)

PROPERTY SPECS

Lease $2,300
City Vaughan, Ontario
Bed / Bath 1 / 2 Full, 1 Half
Address 9000 JANE Street Unit# 1119
Listing ID N12843586
Style Apartment
Flooring Laminate
Parking 1.00
Type Condominium
Status For Lease

EXTENDED FEATURES

Subtype Single Family Community Features Pets not Allowed Features Elevator, Balcony Ownership Leasehold Basement None Heating / Cooling Forced air, Natural gas Parking 1.00



team photo
Windsor: 519-903-9355
Toronto: 905-220-7333
Office: 905-335-3042

REQUEST MORE INFORMATION

Grocery Stores
Schools
Restaurants
Gas Stations
Banks
Parks
Transit
Police
Fire Station
Place of Worship
Please select an amenity above to view a list.





team photo

Connect with Us

Loading...