Skip the navigation and jump to this page's content.

136 Winges Road Unit# 9a Vaughan, Ontario

$4,500
  3 Full

PROPERTY INFO

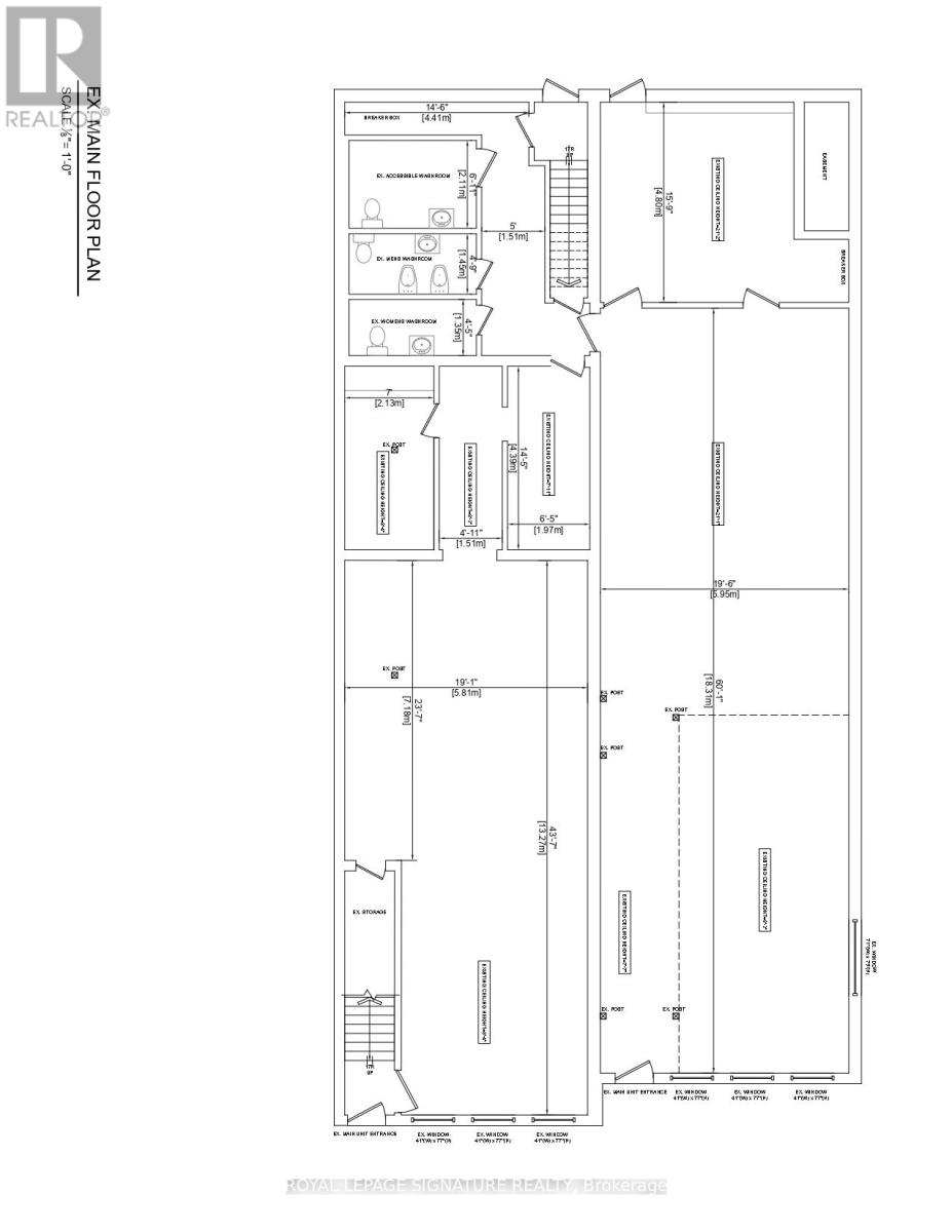
Take advantage of this excellent opportunity with direct exposure on Highway 7 to establish your business in a prime, main-floor retail unit located in the heart of Woodbridge. With over 1,550 square feet of space and a convenient ground-level loading door at the back of the building, this unit is ideal for various ventures, including a medical spa, office, or retail store. Situated in a high-traffic area, the space offers ample client parking and a private entrance, making it suitable for a wide range of businesses. The open-concept layout is filled with natural light, creating a welcoming and professional atmosphere. You can either move in as-is or customize the space to meet your specific needs. **No Dentistry office, Massage, Yoga & Pilates.** (id:4555)

PROPERTY SPECS

Lease $4,500
City Vaughan, Ontario
Bath 3 Full
Address 136 Winges Road Unit# 9A
Listing ID N12467757
Type Industrial/Commercial
Status For Lease

EXTENDED FEATURES

Subtype Retail Ownership Leasehold Heating / Cooling Forced air, Natural gas



team photo
Windsor: 519-903-9355
Toronto: 905-220-7333
Office: 905-335-3042

REQUEST MORE INFORMATION

Grocery Stores
Schools
Restaurants
Gas Stations
Banks
Parks
Transit
Police
Fire Station
Place of Worship
Please select an amenity above to view a list.





team photo

Connect with Us

Loading...