Skip the navigation and jump to this page's content.

26 Anderson Boulevard Uxbridge, Ontario

PROPERTY INFO

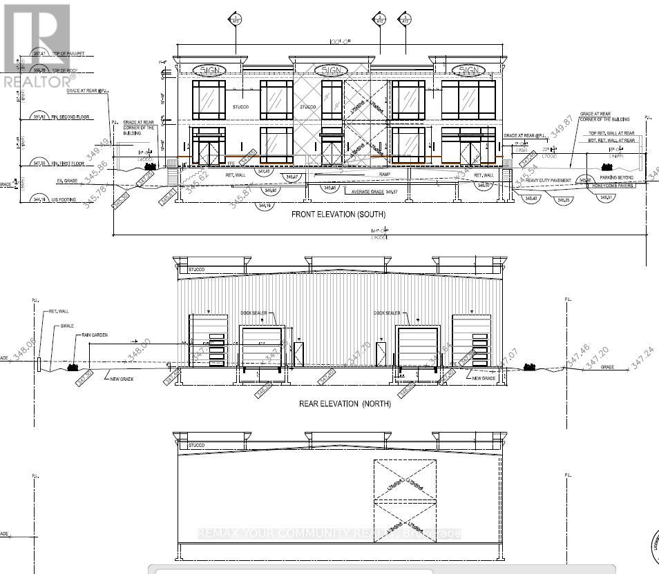
2 Acre Industrial Lot with permitted outside storage in great industrial subdivision with many services at lot line. Flat and level Industrial Land In Prestigious and Mature Business Park. Easy drive to 404 & 407 Highways, and near Town of Stouffville and Town of Uxbridge. As a bonus, there is pre-permit ready to go site plan and architectural drawings available for a 23,980sqft building of which 1,480 is office and 22,499sqft of warehouse with over 26' clear height , two (12' x 12.5') truck level, two (12' x16') drive-in doors and 28 parking stalls. Note: By-Law Allows Outside Storage On This Lot Only If There Is A Building Associated on the lot. (id:4555)

PROPERTY SPECS

Price $2,150,000
City Uxbridge, Ontario
Address 26 Anderson Boulevard
Listing ID N12862434
Land Size 2.058
Type Vacant Land
Status For Sale

EXTENDED FEATURES

Features Irregular lot size Ownership Freehold Sewer Septic System



team photo
Windsor: 519-903-9355
Toronto: 905-220-7333
Office: 905-335-3042

REQUEST MORE INFORMATION

Grocery Stores
Schools
Restaurants
Gas Stations
Banks
Parks
Transit
Police
Fire Station
Place of Worship
Please select an amenity above to view a list.





team photo

Connect with Us

Loading...