Skip the navigation and jump to this page's content.

363 Sorauren Avenue Unit# 405 Toronto, Ontario

$1,039,900
1 Beds
  1 Full

PROPERTY INFO

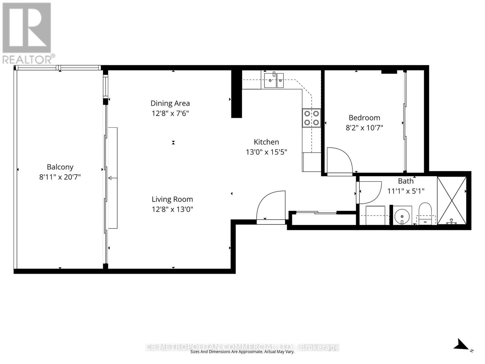
This Stunning Roncesvalles Loft At Robert Watson Will Not Disappoint! Exposed Bricks, Steel Beams, Gleaming Hardwood Floors, High Ceilings W/ Bright South Exposure. The Terrace and View is unmatched and must be seen. Industrial charm meets modern comfort. This large one bedroom, one bathroom Loft blends character with convenience, offering expansive windows that frame unobstructed views. Inside, the open-concept living, dining, and kitchen areas create a seamless space to entertain and unwind. Gorgeous Kitchen W/ Upgraded Stainless Steel Appliances, Stone Counters And Colourful Backsplash. Parking & Locker Are Included In This Wonderful Unit. Right Next Sorauren Park, Walk To Shops/Cafes/Butchers/Restaurants On Roncesvalles/Queen & Dundas West, Near By-Bike Lane-Easy Access To The Gardiner For Commuting. Unique Terraced Lofts such as this are Very Rare in Toronto. (id:4555)

PROPERTY SPECS

Price $1,039,900
City Toronto, Ontario
Bed / Bath 1 / 1 Full
Address 363 Sorauren Avenue Unit# 405
Listing ID W12966862
Style Loft, Apartment
Flooring Hardwood
Parking 1.00
Type Condominium
Status For Sale

EXTENDED FEATURES

Subtype Single Family Community Features Community Centre, Pets Allowed With Restrictions Features Carpet Free, In suite Laundry Ownership Freehold Basement None Heating / Cooling Forced air, Natural gas Parking 1.00



team photo
Windsor: 519-903-9355
Toronto: 905-220-7333
Office: 905-335-3042

REQUEST MORE INFORMATION

Grocery Stores
Schools
Restaurants
Gas Stations
Banks
Parks
Transit
Police
Fire Station
Place of Worship
Please select an amenity above to view a list.





team photo

Connect with Us

Loading...