Skip the navigation and jump to this page's content.

4662 Dundas Street Toronto, Ontario

$2,249,900
6 Beds
  5 Full / 1 Half
Virtual Tour

PROPERTY INFO

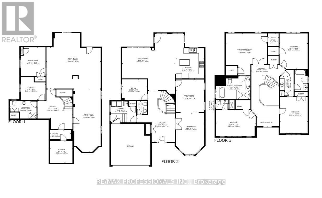
A perfect family home on a large (50 x 150) lot in the desirable Chestnut Hills neighbourhood. This 4 Bedroom home is meticulously maintained and has been in the same family for 25 years. Built in 2000, this custom all-brick home boasts over 3200 of above grade sq feet + 1500 sq feet in the lower level. The main floor features hardwood flooring throughout, a welcoming foyer with spiral oak staircase, *9 ft ceilings, formal dining and living room, a separate office/den(+) and large open concept kitchen & family room overlooking the landscaped yard with towering/mature trees. Powder room and large laundry area on main floor with exits to garage and side yard. The upper level features 4 large bedrooms + 3 full bathrooms. The primary bedroom w/ his and hers walk-in closets and a 5-piece ensuite bathroom with heated flooring. The 2nd and 3rd bedrooms feature large closets and access to a large jack and jill 4-piece washroom. The 4th bedroom w/ 3 piece ensuite bathroom - perfect for guests/ in-law or nanny suite. A functional and efficient layout! (see floor plan and virtual tour) The lower level was professionally finished - the perfect man cave! Large rec room/family room area + games room + walk-out to yard, *8 ft ceilings, additional bedroom with closet, large 3 piece washroom, cold room with sump pump + tons of storage space! *New (2024) Heat Pump- efficient duel system heat & ac + furnace. *All updated insulation in Attic (2024) Conveniently located on Dundas and does sit back from the road offering a large 8+ car driveway with stamped concrete walkways. The setting in the backyard is stunning with large/mature trees, custom three-tiered deck, sand box, fully fenced and landscaped. Located in the luxurious Edenbridge/Humber Valley Community and nestled in the catchment of one of the best school districts in the GTA - close to Our Lady of Sorrows, Kingsway College School, ECI and more. Close to Humbertown Park and Shops, quick access to TTC and GO Transit & more! (id:4555)

PROPERTY SPECS

Price $2,249,900
City Toronto, Ontario
Bed / Bath 6 / 5 Full, 1 Half
Address 4662 Dundas Street
Listing ID W12889128
Style House
Flooring Hardwood, Laminate, Ceramic
Parking 10.00
Type Residential
Status For Sale

EXTENDED FEATURES

Subtype Single Family Features Carpet Free, Sump Pump Ownership Freehold Basement Finished, Walk out, N/A Heating / Cooling Heat Pump, Forced air, Not known, Electric, Natural gas Sewer Sanitary sewer Parking 10.00

Open House(s):

WHEN TYPE  
Sunday, March 22, 2026 2:00 PM - 4:00 PM



team photo
Windsor: 519-903-9355
Toronto: 905-220-7333
Office: 905-335-3042

REQUEST MORE INFORMATION

Grocery Stores
Schools
Restaurants
Gas Stations
Banks
Parks
Transit
Police
Fire Station
Place of Worship
Please select an amenity above to view a list.





team photo

Connect with Us

Loading...