Skip the navigation and jump to this page's content.

525 University Avenue Unit# R1-2 Toronto, Ontario

PROPERTY INFO

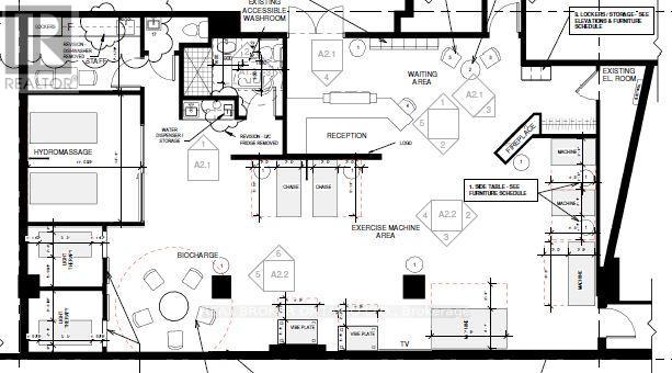
Position your business at the center of one of Canada's most influential healthcare and research corridors. Unit R1-2 offers a rare ground-floor leasing opportunity in Toronto's renowned Discovery District. Located at the base of a 192,771 sq. ft. office tower, this space benefits from lobby access, strong pedestrian traffic, and exceptional visibility within a professionally managed building. The unit has recently undergone a modern appealing renovation, offering open spaces and complete washrooms. Unmatched Healthcare location, this property is steps from some of Canada's most respected hospitals and research institutions, including: Toronto General Hospital, Princess Margaret Cancer Centre, Mount Sinai Hospital, Hospital for Sick Children. The surrounding institutions also include the world-leading innovation hub MaRS Discovery District and the academic strength of the University of Toronto. These institutions generate a constant flow of healthcare professionals, researchers, patients, and visitors, creating strong demand for medical, wellness, and professional services. Ideal Uses include a wide range of medical and service-based users, including: Physiotherapy, Chiropractic, Pilates, rehabilitation studios, Wellness and treatment clinics, Specialized healthcare services, Professional or medical support offices. (id:4555)

PROPERTY SPECS

Lease $28
City Toronto, Ontario
Address 525 University Avenue Unit# R1-2
Listing ID C12883064
Style Offices
Parking 1.00
Land Size 2531
Type Industrial/Commercial
Status For Lease

EXTENDED FEATURES

Subtype Office Features Elevator Ownership Leasehold Heating / Cooling Forced air, Natural gas Parking 1.00



team photo
Windsor: 519-903-9355
Toronto: 905-220-7333
Office: 905-335-3042

REQUEST MORE INFORMATION

Grocery Stores
Schools
Restaurants
Gas Stations
Banks
Parks
Transit
Police
Fire Station
Place of Worship
Please select an amenity above to view a list.





team photo

Connect with Us

Loading...