Skip the navigation and jump to this page's content.

21b Roseland Drive Toronto, Ontario

$1,548,000
4 Beds
  4 Full / 1 Half

PROPERTY INFO

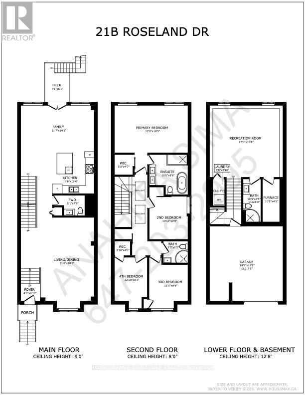
Step into this well-designed, modern home offering 4 bedrooms, 4 washrooms, nearly 2,700 sq. ft. of finished living space, including a bright, high-ceiling finished basement. From the moment you enter the soaring foyer, you're greeted by a sense of space, light, and modern elegance. The main floor features 9ft ceilings, hardwood floors throughout and a seamless open-concept living and dining area accented with pot lights - perfect for entertaining or everyday living. The heart of the home is the open-concept kitchen, complete with an island, stainless steel appliances, and quartz countertops, flowing effortlessly into the breakfast area and family room with a cozy fireplace. Walk out to your private deck and fully fenced backyard-ideal for summer gatherings, kids, or quiet evenings outdoors. An elegant oak staircase with metal spindles leads you upstairs, where two skylights flood the space with natural light. All four bedrooms feature hardwood floors, including a spacious primary bedroom with a walk-in closet and a 5-piece ensuite designed for relaxation. The finished basement offers soaring near-13-ft ceilings, large windows, a full bathroom, and versatile space-perfect for a kids' play area or additional living space. The thoughtfully designed garage sits in between, providing convenient access from both the main floor and the basement. Located just a short walk to the highly sought-after Sir Adam Beck School and the Alderwood Community Centre with its library, pool, and outdoor hockey rink. Enjoy nearby parks, the scenic Etobicoke Creek Trail, easy access to public transit, and major highways including the QEW, Gardiner Expressway, and Highway 427. Shopping, dining, and everyday conveniences, from Sherway Gardens to Costco, IKEA, Farm Boy, and more - are all just minutes away! (id:4555)

PROPERTY SPECS

Price $1,548,000
City Toronto, Ontario
Bed / Bath 4 / 4 Full, 1 Half
Address 21B Roseland Drive
Listing ID W12845882
Style House
Flooring Hardwood, Vinyl
Parking 3.00
Type Residential
Status For Sale

EXTENDED FEATURES

Subtype Single Family Features Carpet Free, Sump Pump Ownership Freehold Basement Finished, N/A Heating / Cooling Forced air, Natural gas Sewer Sanitary sewer Parking 3.00



team photo
Windsor: 519-903-9355
Toronto: 905-220-7333
Office: 905-335-3042

REQUEST MORE INFORMATION

Grocery Stores
Schools
Restaurants
Gas Stations
Banks
Parks
Transit
Police
Fire Station
Place of Worship
Please select an amenity above to view a list.





team photo

Connect with Us

Loading...