Skip the navigation and jump to this page's content.

3100 Keele Street Unit# 511 Toronto, Ontario

$399,990
2 Beds
  1 Full

PROPERTY INFO

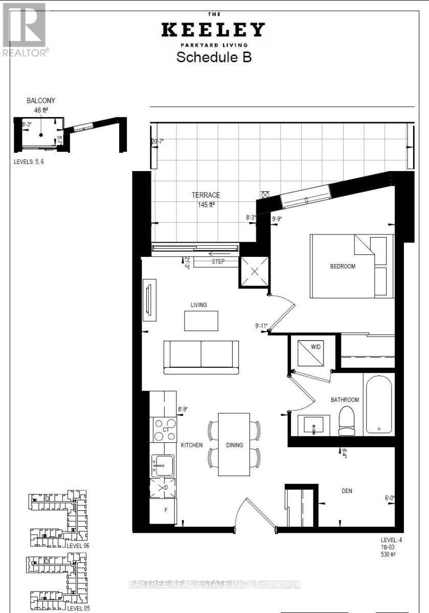
Welcome to The Keeley! A First Pick For Investors. Steady Rental Income. A Prime Address In North York's Dynamic Downsview Park Neighborhood, Offering The Ideal Fusion Of Urban Accessibility And Natural Serenity. Here, You'll Find The Perfect Balance Between Convenience And Outdoor Escapes. Backed By A Lush Ravine With Hiking And Biking Routes Connecting Downsview Park To York University, Nature Enthusiasts Will Relish The Proximity To Green Spaces And Scenic Trails. The Downsview & Wilson Subway Stations Are Just Minutes Away, Ensuring Easy Access To Toronto's Public Transit, While The Nearby 401 Highway Streamlines Your Commute. With York University And Yorkdale Shopping Centre In Close Reach, This Location Caters to Students, Professionals, And Shoppers. The Keeley Also Introduces A Host Of Vibrant Amenities, From A Tranquil Courtyard And A 7th-Floor Sky Yard With Sweeping Views, To A Pet Wash, Library And Fitness Center. Experience The Best Of North York Living At The Keeley. Where Urban Vitality Meets Natural Splendor. N form will be precisely ready if Purchaser wants the unit vacant. Extension of the lease is possible at the current rate. (id:4555)

PROPERTY SPECS

Price $399,990
City Toronto, Ontario
Bed / Bath 2 / 1 Full
Address 3100 Keele Street Unit# 511
Listing ID W12837512
Style Apartment
Parking 1.00
Type Condominium
Status For Sale

EXTENDED FEATURES

Subtype Single Family Community Features Pets Allowed With Restrictions Features Balcony, In suite Laundry Ownership Freehold Basement None Heating / Cooling Forced air, Natural gas Parking 1.00



team photo
Windsor: 519-903-9355
Toronto: 905-220-7333
Office: 905-335-3042

REQUEST MORE INFORMATION

Grocery Stores
Schools
Restaurants
Gas Stations
Banks
Parks
Transit
Police
Fire Station
Place of Worship
Please select an amenity above to view a list.





team photo

Connect with Us

Loading...