Skip the navigation and jump to this page's content.

1238 Kingston Road Toronto, Ontario

PROPERTY INFO

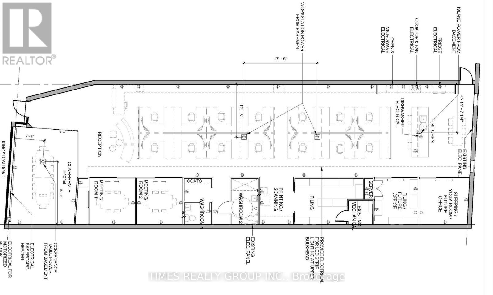
A clean, modern 3,500 sq ft commercial space offering a highly functional layout with a balance of open-concept areas and private rooms. The space is designed to accommodate a range of uses with minimal modification. Large open workspace suitable for office, showroom, school, fitness floor. Multiple enclosed rooms ideal for offices, treatment rooms, or meeting spaces. Glass boardroom / private offices allowing light to flow throughout. Dedicated reception / lounge area at entry. Kitchen / staff area. Two washrooms. High 14 foot ceilings and Extensive glazing providing strong natural light. Suit Professional office (legal, real estate, creative, tech), Showroom / studio with client-facing presentation areas, Spa / wellness clinic with multiple treatment rooms already defined, Fitness / movement studio (yoga, pilates, functional training), Hybrid workspace combining private consult rooms and open collaboration. Located on Kingston Road in the Upper Beaches, the space benefits from strong street presence and accessibility, making it suitable for both client-facing and operational businesses. Max 5 year lease. Demolition clause. Some photos are virtually staged. (id:4555)

PROPERTY SPECS

Lease $22
City Toronto, Ontario
Address 1238 Kingston Road
Listing ID E12825472
Type Industrial/Commercial
Status For Lease

EXTENDED FEATURES

Subtype Retail Ownership Leasehold Heating / Cooling Forced air, Natural gas



team photo
Windsor: 519-903-9355
Toronto: 905-220-7333
Office: 905-335-3042

REQUEST MORE INFORMATION

Grocery Stores
Schools
Restaurants
Gas Stations
Banks
Parks
Transit
Police
Fire Station
Place of Worship
Please select an amenity above to view a list.





team photo

Connect with Us

Loading...