Skip the navigation and jump to this page's content.

36 Park Lawn Road Unit# 1406 Toronto, Ontario

$2,250
2 Beds
  1 Full

PROPERTY INFO

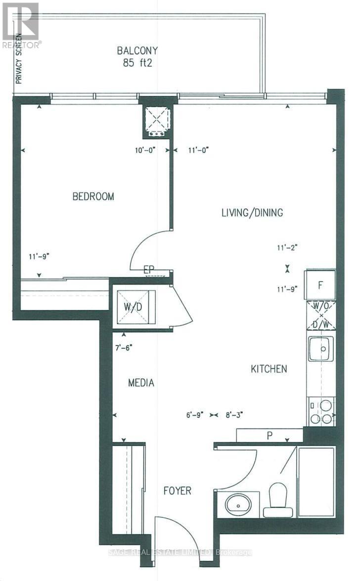
Welcome to Suite 1406 at 36 Park Lawn Rd - a bright, well-laid-out 1 bedroom + den in the heart of Humber Bay Shores. The space is functional and easy to live in, with floor-to-ceiling windows and an open living/dining area that doesn't feel cramped. The den is actually usable - perfect for a proper home office or guest space. The kitchen is modern and clean with stone counters, full-sized appliances, and plenty of storage, flowing naturally into the main living area.Step outside and you're right by the Humber Bay Waterfront Trail, marinas, parks, and Lake Ontario. Morning walks, bike rides, coffee runs, patio dinners - it's all here. Metro is literally downstairs, so groceries take five minutes.For commuters, you're right at the QEW and Gardiner - easy east into downtown or west toward Mississauga and beyond. It's the kind of location that just makes daily life simple. (id:4555)

PROPERTY SPECS

Lease $2,250
City Toronto, Ontario
Bed / Bath 2 / 1 Full
Address 36 PARK LAWN Road Unit# 1406
Listing ID W12785430
Style Apartment
Parking 1.00
Type Condominium
Status For Lease

EXTENDED FEATURES

Subtype Single Family Community Features Pets not Allowed Features Balcony, In suite Laundry Ownership Leasehold Basement None Heating / Cooling Forced air, Natural gas Parking 1.00



team photo
Windsor: 519-903-9355
Toronto: 905-220-7333
Office: 905-335-3042

REQUEST MORE INFORMATION

Grocery Stores
Schools
Restaurants
Gas Stations
Banks
Parks
Transit
Police
Fire Station
Place of Worship
Please select an amenity above to view a list.





team photo

Connect with Us

Loading...