Skip the navigation and jump to this page's content.

215 Sherway Gardens Road Unit# 604 Toronto, Ontario

$619,000
2 Beds
  2 Full

PROPERTY INFO

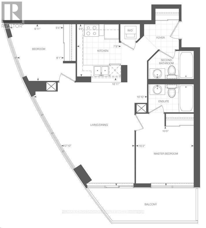
Gorgeous 2 beds and 2 full baths in the Sherway Garden Mall Doorsteps. Southwest Corner Unit with Adorable Unobstructed View from your Living Room. Spacious & Bright with Floor to Ceiling Windows. Enjoy Upscale Amenities: Pool, Steam Room, Gym, Party Room, Theatre, Rec Room, Yoga Room, Concierge, and Plenty of Visitor Parking. Premium Location, Steps to TTC & GO Transit. Quick Access Hwy 427 / 401 / QEW / Gardiner. Well-Taken Cared by Original Owners. (id:4555)

PROPERTY SPECS

Price $619,000
City Toronto, Ontario
Bed / Bath 2 / 2 Full
Address 215 Sherway Gardens Road Unit# 604
Listing ID W12776472
Style Apartment
Flooring Laminate, Ceramic
Parking 1.00
Type Condominium
Status For Sale

EXTENDED FEATURES

Subtype Single Family Community Features Pets Allowed With Restrictions Features Balcony Ownership Freehold Basement None Heating / Cooling Forced air, Natural gas Parking 1.00



team photo
Windsor: 519-903-9355
Toronto: 905-220-7333
Office: 905-335-3042

REQUEST MORE INFORMATION

Grocery Stores
Schools
Restaurants
Gas Stations
Banks
Parks
Transit
Police
Fire Station
Place of Worship
Please select an amenity above to view a list.





team photo

Connect with Us

Loading...