Skip the navigation and jump to this page's content.

202 Dinnick Crescent Toronto, Ontario

$2,895,000
5 Beds
  2 Full

PROPERTY INFO

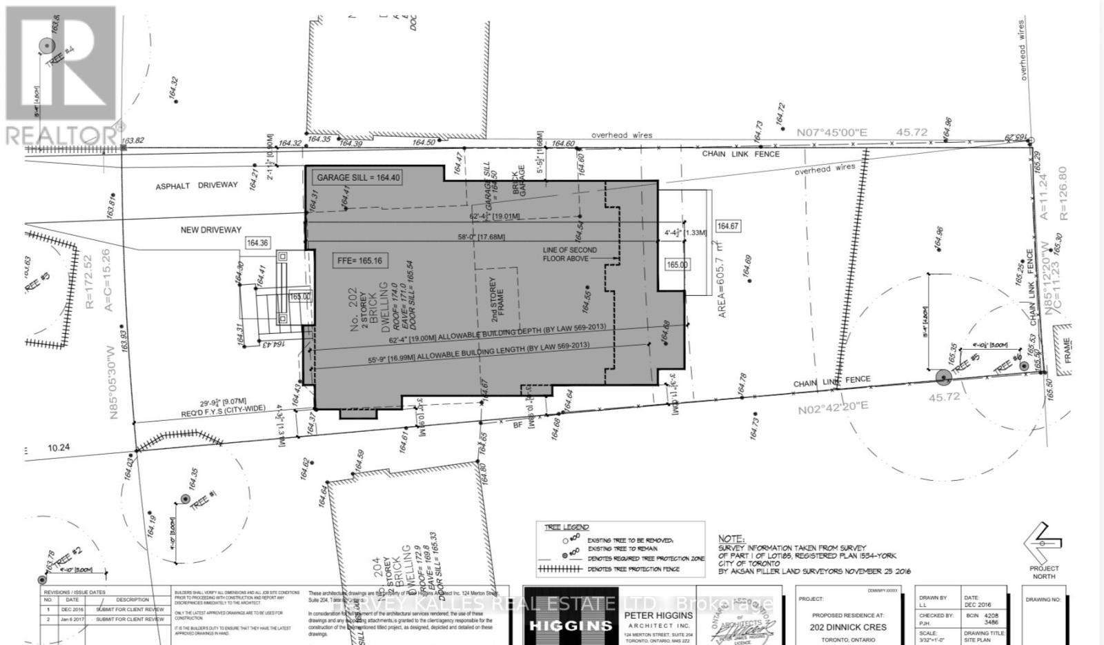
An exceptional opportunity in the heart of Lawrence Park. This prime 50 x 150 ft lot features a sun-filled, south-facing backyard with rare depth and endless potential to create something truly special. Peter Higgins Arch. Plans offer a spectacular detached single family home or build multiple units with plans included. A turnkey opportunity for builders, investors, or end users looking to secure a foothold in one of Toronto's most prestigious neighbourhoods. Just a short walk to the Yonge subway and surrounded by top-ranked schools including Bedford Park, Blythwood, Glenview and Lawrence Park CI, along with Blessed Sacrament and elite private schools such as TFS, Crescent, Havergal and St. Clement's. Steps to Alexander Muir Park, the George Locke Library, and the vibrant shops and cafés along Yonge Street - this is a rare chance to build new in a truly unbeatable location. (id:4555)

PROPERTY SPECS

Price $2,895,000
City Toronto, Ontario
Bed / Bath 5 / 2 Full
Address 202 Dinnick Crescent
Listing ID C12758648
Style House
Parking 6.00
Type Residential
Status For Sale

EXTENDED FEATURES

Subtype Single Family Community Features Community Centre Features Irregular lot size Ownership Freehold Basement Finished, N/A Sewer Sanitary sewer Parking 6.00



team photo
Windsor: 519-903-9355
Toronto: 905-220-7333
Office: 905-335-3042

REQUEST MORE INFORMATION

Grocery Stores
Schools
Restaurants
Gas Stations
Banks
Parks
Transit
Police
Fire Station
Place of Worship
Please select an amenity above to view a list.





team photo

Connect with Us

Loading...