Skip the navigation and jump to this page's content.

543 Richmond Street Unit# Lph20 Toronto, Ontario

$2,500
2 Beds
  1 Full

PROPERTY INFO

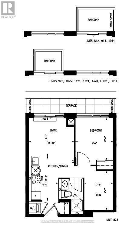
Bright & Spacious LOWER PENTHOUSE 1-Bedroom + DEN**Functional Layout with Balcony**The Den can serve as a second bedroom or home office**Suite includes a stylish kitchen with full-sized appliances, stone countertops with backsplash**Located in one of Toronto's most sought-after downtown communities**Premium amenities, with a vibrant lifestyle of Richmond St at your doorstep**Building features a 24-hour concierge, a State-of-the-Art Fitness centre, Landscaped Rooftop Terrace with an Outdoor Pool **Lounge areas overlooking the city skyline**Party and Media rooms ideal for entertaining***A quiet study lounge for working from home, and inviting social spaces throughout the property. (id:4555)

PROPERTY SPECS

Lease $2,500
City Toronto, Ontario
Bed / Bath 2 / 1 Full
Address 543 Richmond Street Unit# LPH20
Listing ID C12756116
Style Apartment
Flooring Laminate
Type Condominium
Status For Lease

EXTENDED FEATURES

Subtype Single Family Community Features Pets Allowed With Restrictions Features Balcony Ownership Leasehold Basement None Heating / Cooling Forced air, Natural gas



team photo
Windsor: 519-903-9355
Toronto: 905-220-7333
Office: 905-335-3042

REQUEST MORE INFORMATION

Grocery Stores
Schools
Restaurants
Gas Stations
Banks
Parks
Transit
Police
Fire Station
Place of Worship
Please select an amenity above to view a list.





team photo

Connect with Us

Loading...