Skip the navigation and jump to this page's content.

75 Keele Street Unit# 1 Toronto, Ontario

$2,500
2 Beds
  1 Full

PROPERTY INFO

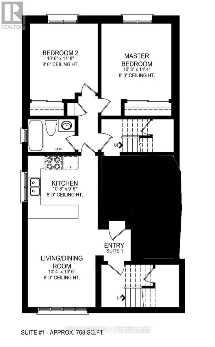
Welcome to High Park living at its best. This bright and spacious 2-bedroom suite is located in a charming detached triplex in one of Toronto's most desirable neighbourhoods. Just steps from Keele subway station and a short walk to the boutiques, cafés, and everyday amenities of Bloor West Village, this unit offers the perfect blend of city convenience and neighbourhood charm.Quiet, sun-filled, and well laid out, the suite also features access to both a front and backyard, providing a rare suburban feel in the heart of the city. A warm, inviting space that's easy to settle into and feel at home. Some photos have been virtually staged to showcase the unit's potential. (id:4555)

PROPERTY SPECS

Lease $2,500
City Toronto, Ontario
Bed / Bath 2 / 1 Full
Address 75 Keele Street Unit# 1
Listing ID W12754032
Style Triplex
Flooring Ceramic
Type Multi-Family
Status For Lease

EXTENDED FEATURES

Ownership Leasehold Views View Basement None Heating / Cooling Radiant heat, Natural gas Sewer Sanitary sewer



team photo
Windsor: 519-903-9355
Toronto: 905-220-7333
Office: 905-335-3042

REQUEST MORE INFORMATION

Grocery Stores
Schools
Restaurants
Gas Stations
Banks
Parks
Transit
Police
Fire Station
Place of Worship
Please select an amenity above to view a list.





team photo

Connect with Us

Loading...