Skip the navigation and jump to this page's content.

157 Toryork Drive Toronto, Ontario

PROPERTY INFO

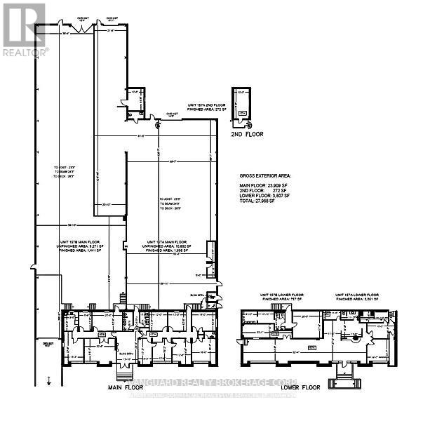
Outstanding opportunity to acquire a 27,988 SF freestanding industrial building on 1.52 acres, including approx. 0.40 acres of approved excess land for expansion. Features 24' clear height, three drive-in doors, one truck-level door, two five-ton cranes, and heavy power. A rare, high-function asset with immediate usability and future upside. (id:4555)

PROPERTY SPECS

Price $11,500,000
City Toronto, Ontario
Address 157 Toryork Drive
Listing ID W12750370
Land Size 1.52
Type Industrial/Commercial
Status For Sale

EXTENDED FEATURES

Subtype Industrial Ownership Freehold Heating / Cooling Forced air, Natural gas



team photo
Windsor: 519-903-9355
Toronto: 905-220-7333
Office: 905-335-3042

REQUEST MORE INFORMATION

Grocery Stores
Schools
Restaurants
Gas Stations
Banks
Parks
Transit
Police
Fire Station
Place of Worship
Please select an amenity above to view a list.





team photo

Connect with Us

Loading...