Skip the navigation and jump to this page's content.

8 Eastern Avenue Unit# #basment A Toronto, Ontario

PROPERTY INFO

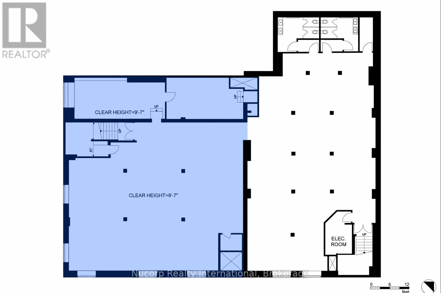
Unique opportunity to lease a freestanding corner building with 3,515 SF of commercial space on the bright basement level in Corktown. Recently renovated with large windows providing ample natural light. Well designed open concept layout. Excellent signage potential. Rare convenient downtown parking included. Prime location with easy access to the DVP and Gardiner Expressway. CR SS2 Zoning Permits MANY USES including but not limited to Medical, Veterinary Clinic, Retail, Wellness Centre, Educational Use. (id:4555)

PROPERTY SPECS

Lease $20
City Toronto, Ontario
Address 8 Eastern Avenue Unit# #Basment A
Listing ID C12691146
Type Industrial/Commercial
Status For Lease

EXTENDED FEATURES

Subtype Retail Ownership Leasehold Heating / Cooling Forced air, Natural gas



team photo
Windsor: 519-903-9355
Toronto: 905-220-7333
Office: 905-335-3042

REQUEST MORE INFORMATION

Grocery Stores
Schools
Restaurants
Gas Stations
Banks
Parks
Transit
Police
Fire Station
Place of Worship
Please select an amenity above to view a list.





team photo

Connect with Us

Loading...