Skip the navigation and jump to this page's content.

2369 Danforth Avenue Unit# 205 Toronto, Ontario

$2,000
1 Beds
  1 Full

PROPERTY INFO

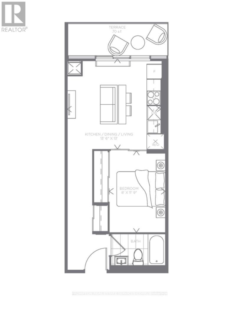
Welcome to Danny Danforth located conveniently along the subway line at Danforth and Main. This well-maintained 1 Bedroom suite features 9-ft ceilings, modern finishes throughout, and a generous balcony with clear north facing views. Primary bedroom has a large and deep closet and is very spacious enough to also fit a small desk. Building amenities include concierge, exercise room, party room, and visitor parking. A convenient location with everything you need outside your front door! Steps to public transit (subway station), coffee shops, restaurants, Shoppers, Sobeys supermarket.Minutes to multiple community centres, library, schools, and parks. One storage locker + Rogers internet included. Move in March 1st! (id:4555)

PROPERTY SPECS

Lease $2,000
City Toronto, Ontario
Bed / Bath 1 / 1 Full
Address 2369 Danforth Avenue Unit# 205
Listing ID E12740836
Style Apartment
Type Condominium
Status For Lease

EXTENDED FEATURES

Subtype Single Family Community Features Pets not Allowed, Community Centre Features Elevator, Carpet Free Ownership Leasehold Views View Basement None Heating / Cooling Forced air, Natural gas



team photo
Windsor: 519-903-9355
Toronto: 905-220-7333
Office: 905-335-3042

REQUEST MORE INFORMATION

Grocery Stores
Schools
Restaurants
Gas Stations
Banks
Parks
Transit
Police
Fire Station
Place of Worship
Please select an amenity above to view a list.





team photo

Connect with Us

Loading...