Skip the navigation and jump to this page's content.

306a Eglinton Avenue Toronto, Ontario

$54
  1 Full

PROPERTY INFO

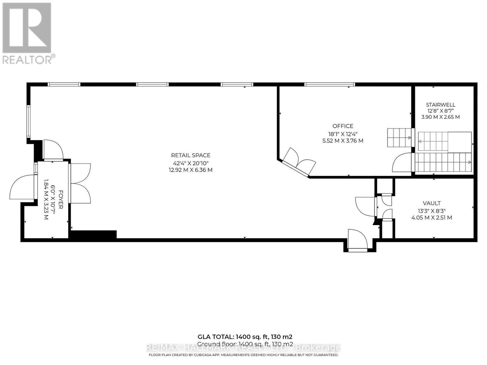
Premier, Main Floor, Commercial, Retail Space, Main Floor of Corner Building With Amazing Exposure At Prominent Intersection, Northeast Corner Of Avenue Rd & Eglinton Ave West. High Vehicular And Foot Traffic Steps From the "NEWLY OPENED CROSSTOW STATION", Retail Shops, Restaurants, Parks, Schools, And Much More! Note: This Listing Is For Approx. 1400 Sq/Ft, *Fronts On Eglinton AND Avenue Rd.* (HST Not Included, Electricity is billed separately) (id:4555)

PROPERTY SPECS

Lease $54
City Toronto, Ontario
Bath 1 Full
Address 306A Eglinton Avenue
Listing ID C12740598
Type Industrial/Commercial
Status For Lease

EXTENDED FEATURES

Subtype Retail Ownership Leasehold Heating / Cooling Hot water radiator heat, Natural gas



team photo
Windsor: 519-903-9355
Toronto: 905-220-7333
Office: 905-335-3042

REQUEST MORE INFORMATION

Grocery Stores
Schools
Restaurants
Gas Stations
Banks
Parks
Transit
Police
Fire Station
Place of Worship
Please select an amenity above to view a list.





team photo

Connect with Us

Loading...