Skip the navigation and jump to this page's content.

30 Inn On The Park Drive Unit# 3106 Toronto, Ontario

$1,980
1 Beds
  1 Full

PROPERTY INFO

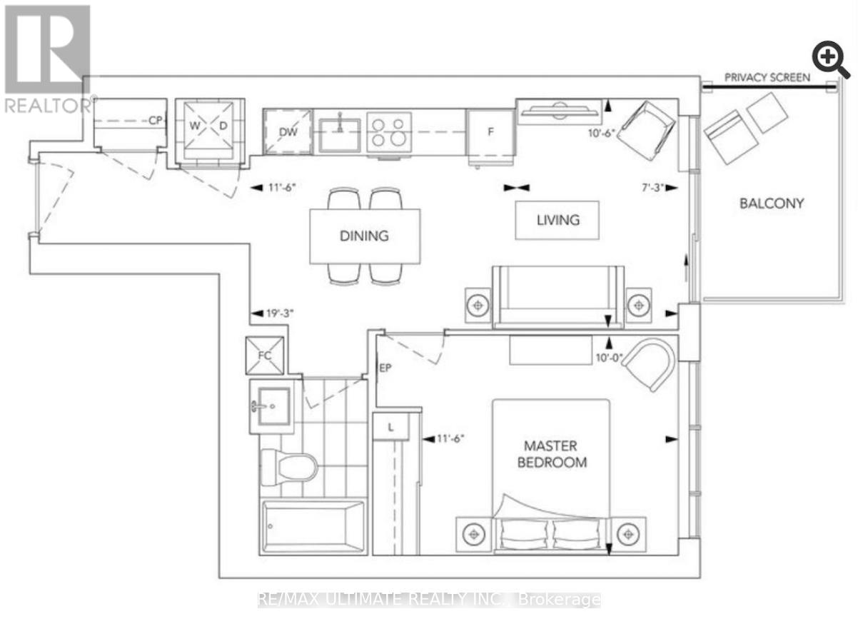
This luxury 1-bedroom and 1-bathroom condo suite at Auberge I, offers 543 square feet of open living space and 9-foot ceilings. Located on the 31th floor, enjoy your East-facing views from a spacious and private balcony. This suite comes fully equipped with energy-efficient 5-star modern appliances, integrated fridge & dishwasher, contemporary soft-close cabinetry, in-suite laundry, and floor-to-ceiling windows with coverings included. Upscale amenities include state-of-the-art fitness center, yoga room, the grand entertainment lounge, or the multi-purpose lounge, lobbies. Steps from the New Eglinton LRT Line,TTC & Don mills-Eglinton Subway. (id:4555)

PROPERTY SPECS

Lease $1,980
City Toronto, Ontario
Bed / Bath 1 / 1 Full
Address 30 Inn On The Park Drive Unit# 3106
Listing ID C12712048
Style Apartment
Flooring Laminate
Type Condominium
Status For Lease

EXTENDED FEATURES

Subtype Single Family Community Features Pets Allowed With Restrictions Features Balcony, Carpet Free Ownership Leasehold Basement None Heating / Cooling Forced air, Natural gas



team photo
Windsor: 519-903-9355
Toronto: 905-220-7333
Office: 905-335-3042

REQUEST MORE INFORMATION

Grocery Stores
Schools
Restaurants
Gas Stations
Banks
Parks
Transit
Police
Fire Station
Place of Worship
Please select an amenity above to view a list.





team photo

Connect with Us

Loading...