Skip the navigation and jump to this page's content.

195 Mccaul Street Unit# 1706 Toronto, Ontario

$1,900
  1 Full

PROPERTY INFO

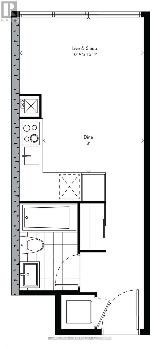
Upgraded studio soft loft at **Bread Company Condos**.in Prime Downtown Location, Featuring 9-ft exposed concrete ceilings, floor-to-ceiling windows, and modern finishes. This sun-filled unit offers a sleek, stylish living space. The gourmet kitchen boasts of gas cooking, and stainless-steel appliances, while the spa-inspired bathroom features a rainfall shower. Located steps from U of T, OCAD, Queens Park, and Torontos major hospitals (Mount Sinai, SickKids, Toronto General, and more), this AAA location offers a **Walk Score of 97 and a Transit Score of 100**. Enjoy the trendy dining and entertainment of Baldwin Village just outside your door. Building amenities include a sky lounge, concierge, fitness and yoga studios, co-working space, and an outdoor sky park with BBQ and dining areas. (id:4555)

PROPERTY SPECS

Lease $1,900
City Toronto, Ontario
Bath 1 Full
Address 195 McCaul Street Unit# 1706
Listing ID C12710888
Style Apartment
Flooring Laminate
Type Condominium
Status For Lease

EXTENDED FEATURES

Subtype Single Family Community Features Pets not Allowed, Community Centre Features Carpet Free Ownership Leasehold Views City view Basement None Heating / Cooling Forced air, Natural gas



team photo
Windsor: 519-903-9355
Toronto: 905-220-7333
Office: 905-335-3042

REQUEST MORE INFORMATION

Grocery Stores
Schools
Restaurants
Gas Stations
Banks
Parks
Transit
Police
Fire Station
Place of Worship
Please select an amenity above to view a list.





team photo

Connect with Us

Loading...