Skip the navigation and jump to this page's content.

400 Adelaide Street Unit# 1715 Toronto, Ontario

$2,800
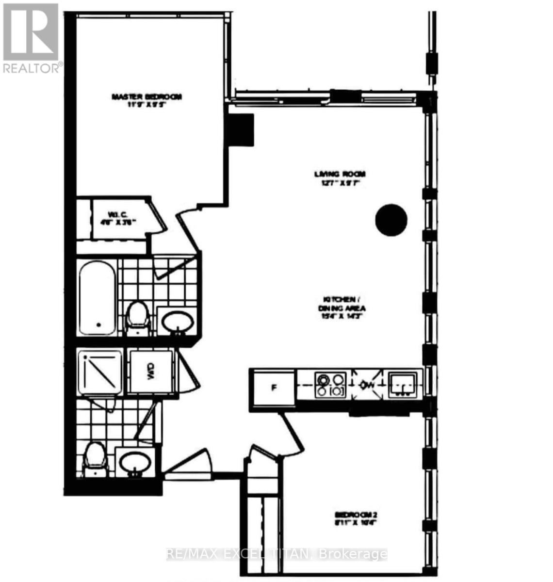
2 Beds
  2 Full

PROPERTY INFO

Spacious 2-bedroom, 2-bathroom condo at Ivory on Adelaide available for rent March 1, 2026. Includes parking. Enjoy premium building amenities including 24-hour concierge, gym, party room, guest suites, and rooftop terrace with BBQs and city views. Prime downtown location: 5 min walk to King East dining & cafés, 8 min to St. Lawrence Market, 10 min to the Financial District, and steps to TTC streetcar. Ideal for professionals seeking comfort, convenience, and lifestyle. (id:4555)

PROPERTY SPECS

Lease $2,800
City Toronto, Ontario
Bed / Bath 2 / 2 Full
Address 400 Adelaide Street Unit# 1715
Listing ID C12686810
Style Apartment
Parking 1.00
Type Condominium
Status For Lease

EXTENDED FEATURES

Subtype Single Family Community Features Pets Allowed With Restrictions Features Balcony, Carpet Free, In suite Laundry Ownership Leasehold Basement None Heating / Cooling Forced air, Natural gas Parking 1.00



team photo
Windsor: 519-903-9355
Toronto: 905-220-7333
Office: 905-335-3042

REQUEST MORE INFORMATION

Grocery Stores
Schools
Restaurants
Gas Stations
Banks
Parks
Transit
Police
Fire Station
Place of Worship
Please select an amenity above to view a list.





team photo

Connect with Us

Loading...