Skip the navigation and jump to this page's content.

5437 Yonge Street Unit# A Toronto, Ontario

PROPERTY INFO

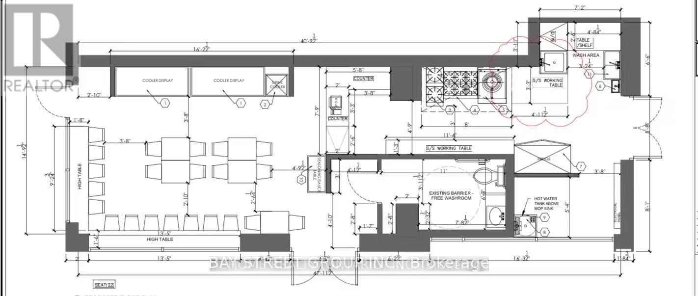
Profitable restaurant business with fully equipped kitchen located At The Centre Of North York, Yonge And Finch, Walking Distance To Subway, Surrounding With Residential Condos And Houses And Other Commercial Businesses, large outside Patio, and parking zones available front and back, extra storage space in the Shipping container at back. The business can continue operating, and the franchise brand usage rights are transferable. (id:4555)

PROPERTY SPECS

Price $135,000
City Toronto, Ontario
Address 5437 Yonge Street Unit# A
Listing ID C12607682
Parking 3.00
Type Business
Status For Sale

EXTENDED FEATURES

Ownership Freehold Heating / Cooling Forced air, Natural gas Parking 3.00



team photo
Windsor: 519-903-9355
Toronto: 905-220-7333
Office: 905-335-3042

REQUEST MORE INFORMATION

Grocery Stores
Schools
Restaurants
Gas Stations
Banks
Parks
Transit
Police
Fire Station
Place of Worship
Please select an amenity above to view a list.





team photo

Connect with Us

Loading...