Skip the navigation and jump to this page's content.

35 Parliament Street Unit# 630 Toronto, Ontario

$2,500
2 Beds
  1 Full

PROPERTY INFO

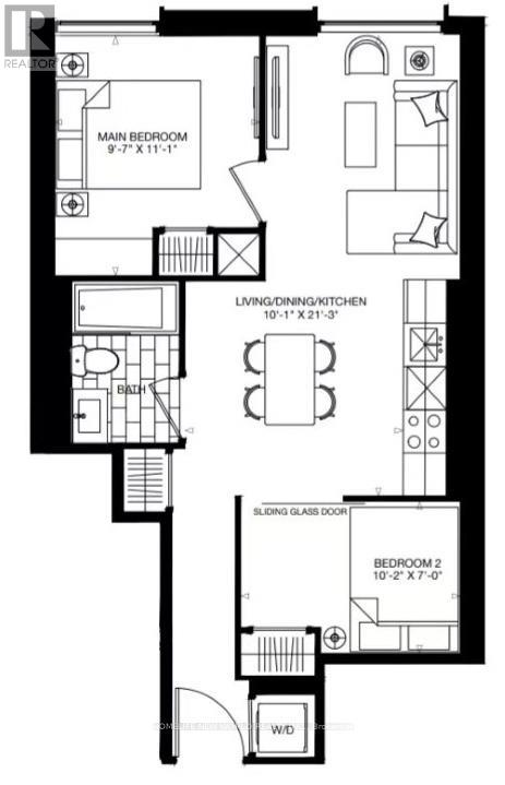
Brand-New 2 Bedroom unit!! Nestled in the historic Distillery District, The Goode offers residents a unique blend of historic charm and modern convenience. This bright and spacious unit offers one of the best layouts in the building, featuring floor-to-ceiling windows, Modern Open Concept kitchen. The intelligently designed split-bedroom floor plan offers privacy and functionality, making it perfect for both everyday living and entertaining. TTC at the door front, and walking distance to Distillery District, St Lawrence Market and Toronto Waterfront and more! (id:4555)

PROPERTY SPECS

Lease $2,500
City Toronto, Ontario
Bed / Bath 2 / 1 Full
Address 35 Parliament Street Unit# 630
Listing ID C12576988
Style Apartment
Flooring Vinyl
Type Condominium
Status For Lease

EXTENDED FEATURES

Subtype Single Family Community Features Pets Allowed With Restrictions Ownership Leasehold Basement None Heating / Cooling Forced air, Natural gas



team photo
Windsor: 519-903-9355
Toronto: 905-220-7333
Office: 905-335-3042

REQUEST MORE INFORMATION

Grocery Stores
Schools
Restaurants
Gas Stations
Banks
Parks
Transit
Police
Fire Station
Place of Worship
Please select an amenity above to view a list.





team photo

Connect with Us

Loading...