Skip the navigation and jump to this page's content.

82 Lanark Avenue Toronto, Ontario

$1,699,000
5 Beds
  3 Full

PROPERTY INFO

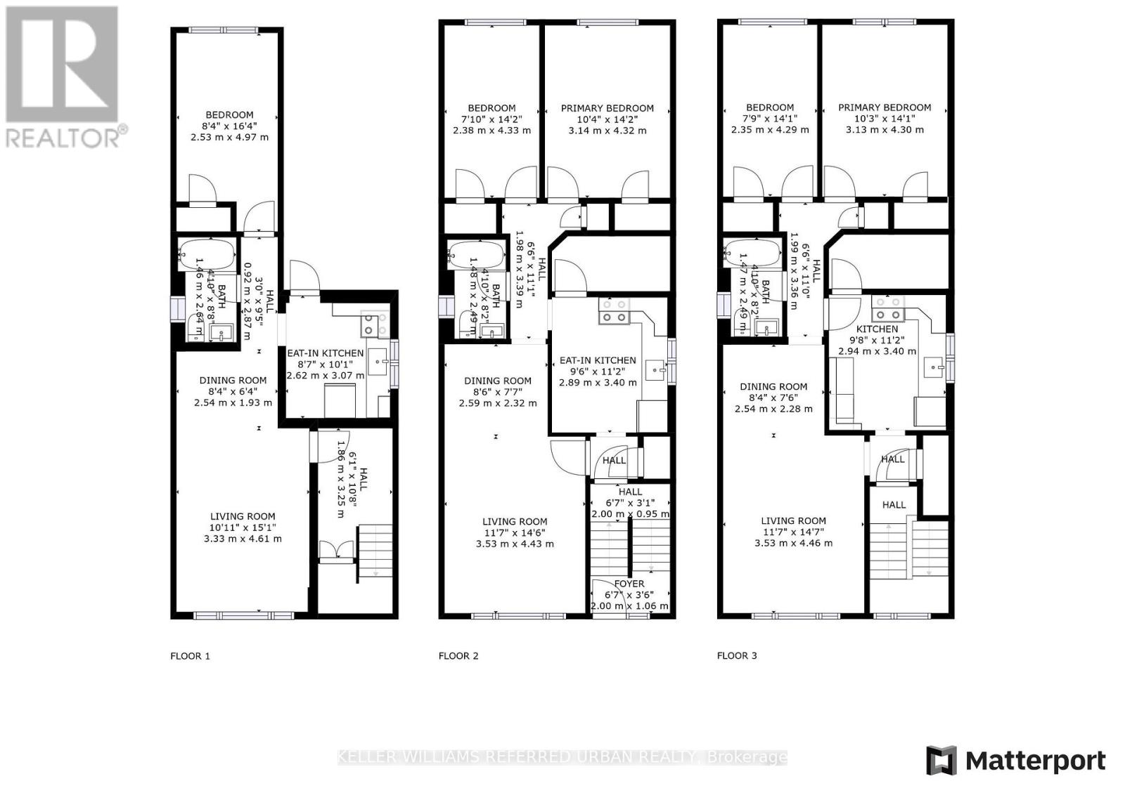
Great Investment Opportunity...Live In One Unit And Rent The Other Two, Or Use All 3 Levels For The Entire Family. 3 Separate Metered Units With Parking. Steps To Future Oakwood Lrt Station & To Existing Eglinton West Subway Station On University Line. Minutes To Allen Rd., 401 & Downtown Toronto. This Location Is Conveniently Steps To All Your Shopping, Restaurants & Schools. (id:4555)

PROPERTY SPECS

Price $1,699,000
City Toronto, Ontario
Bed / Bath 5 / 3 Full
Address 82 Lanark Avenue
Listing ID C12540940
Style Triplex
Flooring Tile, Hardwood
Parking 3.00
Type Multi-Family
Status For Sale

EXTENDED FEATURES

Ownership Freehold Basement Apartment in basement, Separate entrance, N/A Sewer Sanitary sewer Parking 3.00



team photo
Windsor: 519-903-9355
Toronto: 905-220-7333
Office: 905-335-3042

REQUEST MORE INFORMATION

Grocery Stores
Schools
Restaurants
Gas Stations
Banks
Parks
Transit
Police
Fire Station
Place of Worship
Please select an amenity above to view a list.





team photo

Connect with Us

Loading...