Skip the navigation and jump to this page's content.

109 Vanderhoof Avenue Unit# 203 Toronto, Ontario

$21
  1 Full

PROPERTY INFO

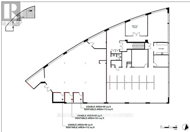
Fabulous Second Floor Premier Office Space Combining Traditional Post and Beam Interior With Modern High End Finishes. Plenty of Natural Light, Featuring Private Entrance, High Ceilings and Corner Exposure On Two Sides. Extremely Flexible Space With Private Boardrooms. Large Open Areas and Private Offices. Also Includes Large Kitchen and Private Washroom. Great Signage. Plenty of Parking. Conveniently Located Just Minutes from Laird and Eglinton. Space could be demised into two equal sized units. See Attached Drawings. (id:4555)

PROPERTY SPECS

Lease $21
City Toronto, Ontario
Bath 1 Full
Address 109 Vanderhoof Avenue Unit# 203
Listing ID C12497958
Style Offices
Type Industrial/Commercial
Status For Lease

EXTENDED FEATURES

Subtype Office Features Elevator Ownership Leasehold Heating / Cooling Forced air, Natural gas



team photo
Windsor: 519-903-9355
Toronto: 905-220-7333
Office: 905-335-3042

REQUEST MORE INFORMATION

Grocery Stores
Schools
Restaurants
Gas Stations
Banks
Parks
Transit
Police
Fire Station
Place of Worship
Please select an amenity above to view a list.





team photo

Connect with Us

Loading...