Skip the navigation and jump to this page's content.

15 Sycamore Drive Tillsonburg, Ontario

$819,900
4 Beds
  4 Full / 1 Half

PROPERTY INFO

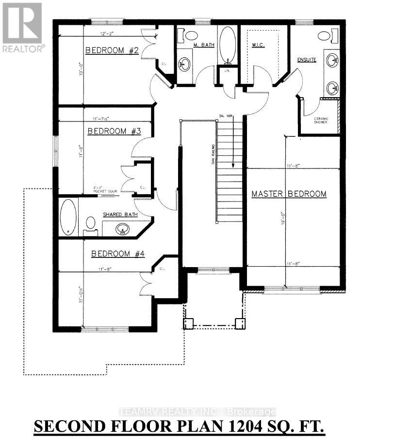
*BONUS: 5 New Appliances Included! Step into this exceptional Ready to move-in spec home showcasing the expansive 'Thames 2' floor plan, thoughtfully designed for growing families in a warm,new home community. Tailored for family comfort, the entrance welcomes you with an open-to-above foyer, setting the tone for the main floor featuring an inviting eat-in kitchen, Formal dining/living room and Family room, all graced with soaring 9' ceilings. Natural light floods the home through abundant windows. Upstairs, discover four generously proportioned bedrooms, highlighted by a spacious master bedroom boasting a large en-suite. Two additional bedrooms share a convenient cheater en-suite, complemented by a third full bathroom for guests. Completing the layout is a fourth bedroom, ideal for those needing extra space without compromising on quality or budget. *Ask sales representative for appliance details. (id:4555)

PROPERTY SPECS

Price $819,900
City Tillsonburg, Ontario
Bed / Bath 4 / 4 Full, 1 Half
Address 15 Sycamore Drive
Listing ID X12228103
Style House
Parking 4.00
Type Residential
Status For Sale

EXTENDED FEATURES

Subtype Single Family Ownership Freehold Basement Unfinished, Full Heating / Cooling Forced air, Natural gas Sewer Sanitary sewer Parking 4.00



team photo
Windsor: 519-903-9355
Toronto: 905-220-7333
Office: 905-335-3042

REQUEST MORE INFORMATION

Grocery Stores
Schools
Restaurants
Gas Stations
Banks
Parks
Transit
Police
Fire Station
Place of Worship
Please select an amenity above to view a list.





team photo

Connect with Us

Loading...