Skip the navigation and jump to this page's content.

11 Sycamore Drive Tillsonburg, Ontario

$749,900
3 Beds
  3 Full / 1 Half

PROPERTY INFO

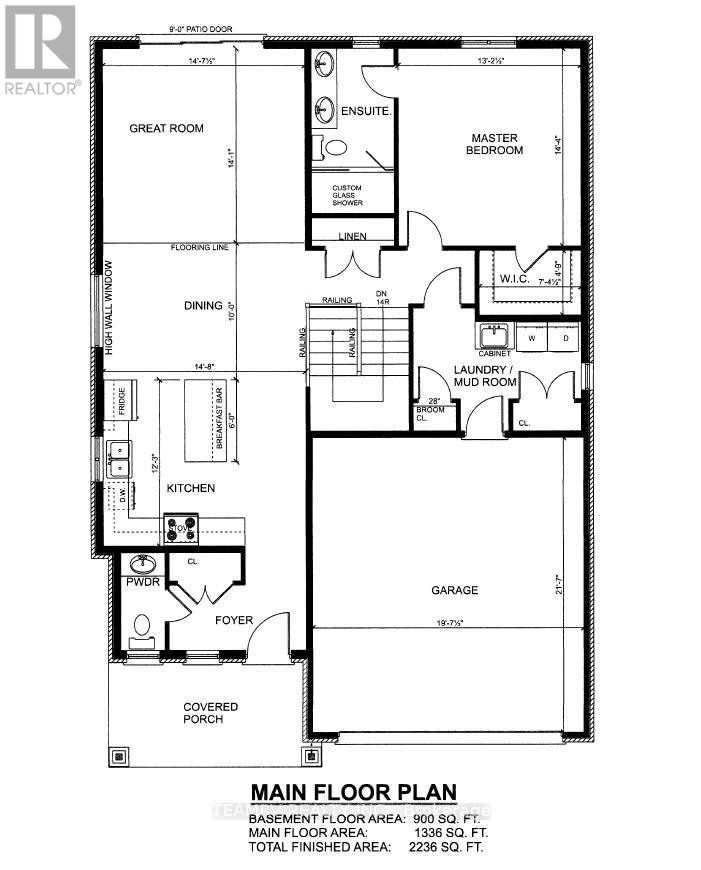
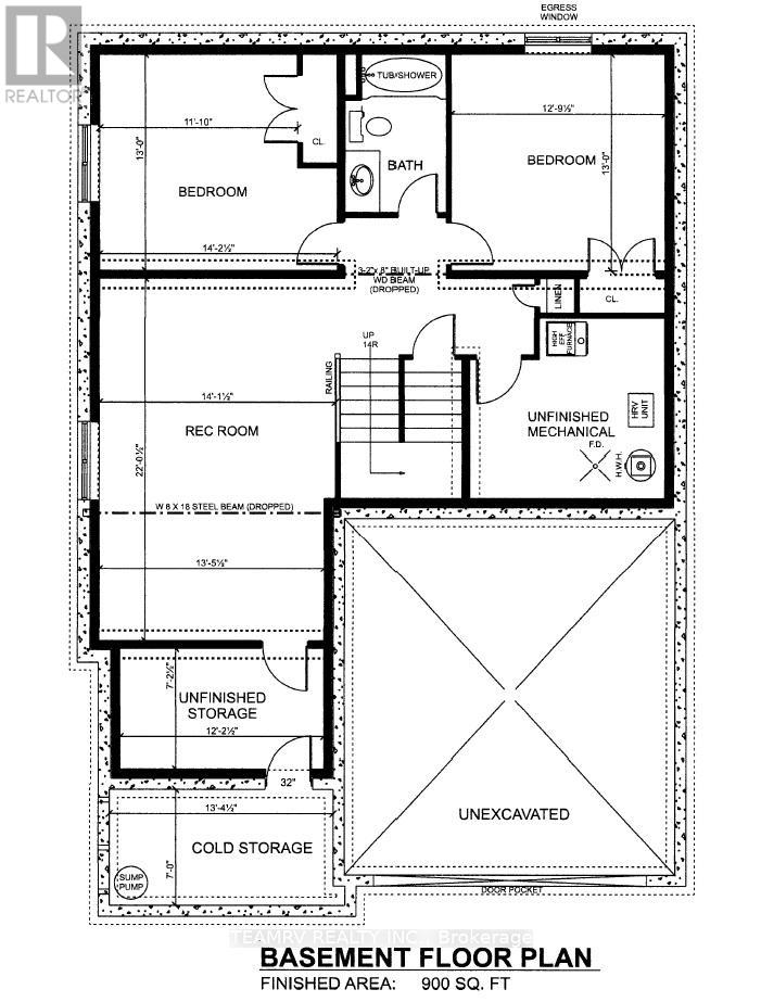
Discover the perfect blend of luxury and comfort in this stunning custom bungalow, nestled on a spacious 52' lot in Tillsonburg's prestigious new home subdivision. Built by a renowned quality home builder Trevalli Homes. This move-in ready gem features a welcoming covered front porch that invites you inside. Step into a breathtaking main floor adorned with 9 ceiling, kitchen, great room, dinette, and hallway. The gourmet kitchen is a chef's dream, boasting an Island with breakfast bar, granite counter tops, and seamless transitions to the stylish powder room and en-suite that features a frame-less glass shower. The true highlight is the finished basement, offering a spacious rec room, additional bathroom, and two cozy bedrooms perfect for guests or family. This meticulously crafted home is priced to sell, so don't miss your chance to make it yours before it's gone! (id:4555)

PROPERTY SPECS

Price $749,900
City Tillsonburg, Ontario
Bed / Bath 3 / 3 Full, 1 Half
Address 11 Sycamore Drive
Listing ID X12228095
Style Bungalow, House
Parking 4.00
Type Residential
Status For Sale

EXTENDED FEATURES

Subtype Single Family Ownership Freehold Basement Partially finished, Full Heating / Cooling Forced air, Natural gas Sewer Sanitary sewer Parking 4.00



team photo
Windsor: 519-903-9355
Toronto: 905-220-7333
Office: 905-335-3042

REQUEST MORE INFORMATION

Grocery Stores
Schools
Restaurants
Gas Stations
Banks
Parks
Transit
Police
Fire Station
Place of Worship
Please select an amenity above to view a list.





team photo

Connect with Us

Loading...