Skip the navigation and jump to this page's content.

5227 Habib Avenue Tecumseh, Ontario

$749,999
3 Beds
  4 Full / 1 Half

PROPERTY INFO

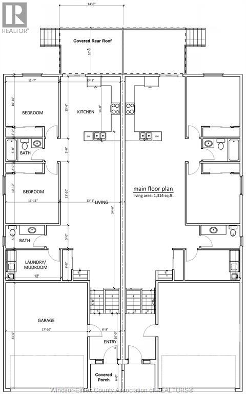
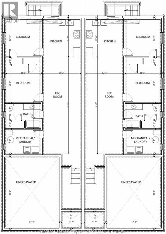
WELCOME TO MAIDSTONE IN THE TOWN OF TECUMSEH, FEATURING THIS 1760 SQFT SEMI DETATCHED RAISED RANCH SEMI BONUS. FREATURING MASTER BEDROOM OVER TOP THE GARAGE WITH ENSUITE AND WALK IN CLOSET. OPEN CONCEPT MAIN FLOOR BOASTS 2 BATHROOMS, INCLUDING MAIN AND POWDER ROOM FOR GUESTS. LARGE KITCHEN WITH BREAKFEST BAR AND EATING AREA OPENS TO FORMAL DINNING ROOM AND LIVIG ROOM SPACE. LARGE MAIN FLOOR LAUNDRY WITH LOTS OF SPLACE FOR STORAGE.DOUBLE CAR INSULATED/FINISHED GARAGE (PRIMED) WITH INSIDE ENTRY. GRADE ENTRANCE IN THE BACK WITH ROUGHED IN KITCHEN AND BATH IN BASEMENT FOR FUTURE FINISHINGS. CLOSE TO 401, HIGHWAY 3, Costco, WALKER ROAD POWER CENTER AND NEW MEGA HOSPITAL. QUALITY FINISHES THROUGHOUT. THE HOME INCLUDING HARDWOOD FLOORS, PORCELIN TILE AND QUARTZ COUNTER TOPS. CONTACT REALTORĀ® FOR MORE INFO.Taxes included in the asking price. (id:4555)

PROPERTY SPECS

Price $749,999
City Tecumseh, Ontario
Bed / Bath 3 / 4 Full, 1 Half
Address 5227 HABIB Avenue
Listing ID 26002181
Style Raised Ranch w/ Bonus Room, House
Flooring Hardwood, Ceramic/Porcelain
Type Residential
Status For Sale

EXTENDED FEATURES

Subtype Single Family Features Front Driveway, Gravel Driveway Ownership Freehold Heating / Cooling Heat Recovery Ventilation (HRV), Natural gas, Furnace



team photo
Windsor: 519-903-9355
Toronto: 905-220-7333
Office: 905-335-3042

REQUEST MORE INFORMATION

Grocery Stores
Schools
Restaurants
Gas Stations
Banks
Parks
Transit
Police
Fire Station
Place of Worship
Please select an amenity above to view a list.





team photo

Connect with Us

Loading...