Skip the navigation and jump to this page's content.

649 Ontario Street Unit# 1 Stratford, Ontario

PROPERTY INFO

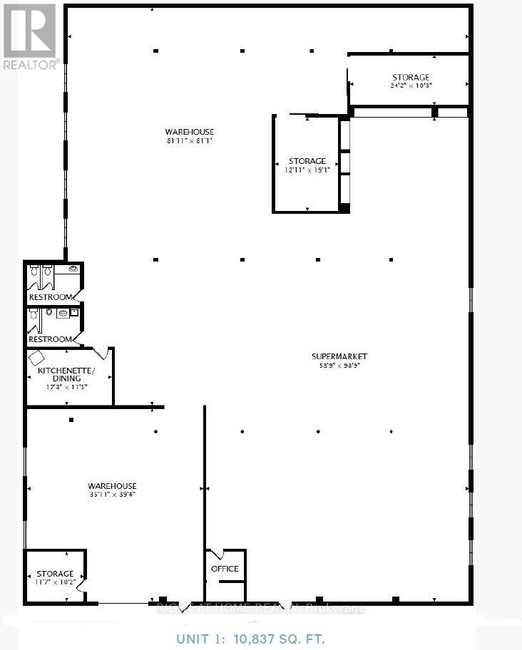
Offering 10,837 SF of flexible commercial space in a high-traffic, high visibility location on Stratfords main commercial corridor. Positioned alonge a major arterial. route, the property benefits from outstanding exposure and is surrounded by national and local retailers including Walmart, Zehrs, Tim Hortons, Dairy Queen, and more. C2 zoning permits a broad range of uses, including medical, automative sales or service, personal service, studio, place of worship, and other commercial applications. On-site surface parking convenience for both customers and staff. (id:4555)

PROPERTY SPECS

Lease $10
City Stratford, Ontario
Address 649 Ontario Street Unit# 1
Listing ID X12685206
Style Warehouse
Land Size 1.555
Type Industrial/Commercial
Status For Lease

EXTENDED FEATURES

Subtype Industrial Ownership Leasehold Heating / Cooling Other



team photo
Windsor: 519-903-9355
Toronto: 905-220-7333
Office: 905-335-3042

REQUEST MORE INFORMATION

Grocery Stores
Schools
Restaurants
Gas Stations
Banks
Parks
Transit
Police
Fire Station
Place of Worship
Please select an amenity above to view a list.





team photo

Connect with Us

Loading...