Skip the navigation and jump to this page's content.

101 Corman Avenue Stoney Creek, Ontario

$769,000
3 Beds
  2 Full

PROPERTY INFO

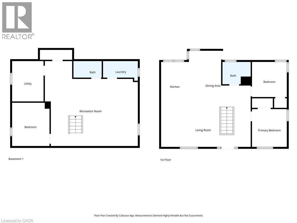
Located in one of Stoney Creek’s most desirable neighbourhoods, this beautifully updated bungalow with 2+1 bedrooms, and 2 full bathrooms, is surrounded by Cherry Heights Park, Corman Park, local schools, the Historic Downtown, and an excellent selection of quality restaurants and amenities. The home has been thoughtfully redesigned to enhance light, flow, and everyday functionality, featuring oversized windows and a seamless open-concept layout. The modern kitchen is both stylish and practical, offering quartz countertops, stainless steel appliances, and a comfortable eat-in breakfast nook. A custom railing staircase leads to a well-planned lower level complete with an additional bathroom and a spacious recreation room perfect for guests, teenagers, or extended living space. Step outside to a newly built wood deck overlooking a professionally landscaped backyard oasis - backing onto a park - ideal for relaxing, entertaining, and enjoying the changing seasons. A truly turnkey property in an established community, offering refined updates, outdoor living, and an exceptional location. (id:4555)

PROPERTY SPECS

Price $769,000
City Stoney Creek, Ontario
Bed / Bath 3 / 2 Full
Address 101 CORMAN Avenue
Listing ID 40796106
Style Bungalow, House
Parking 3.00
Land Size 0.21
Type Residential
Status For Sale

EXTENDED FEATURES

Subtype Single Family Community Features Quiet Area Features Sump Pump Ownership Freehold Basement Finished, Full Heating / Cooling Forced air, Natural gas Sewer Municipal sewage system Parking 3.00



team photo
Windsor: 519-903-9355
Toronto: 905-220-7333
Office: 905-335-3042

REQUEST MORE INFORMATION

Grocery Stores
Schools
Restaurants
Gas Stations
Banks
Parks
Transit
Police
Fire Station
Place of Worship
Please select an amenity above to view a list.





team photo

Connect with Us

Loading...