Skip the navigation and jump to this page's content.

427 Glendale Avenue St. Catharines, Ontario

PROPERTY INFO

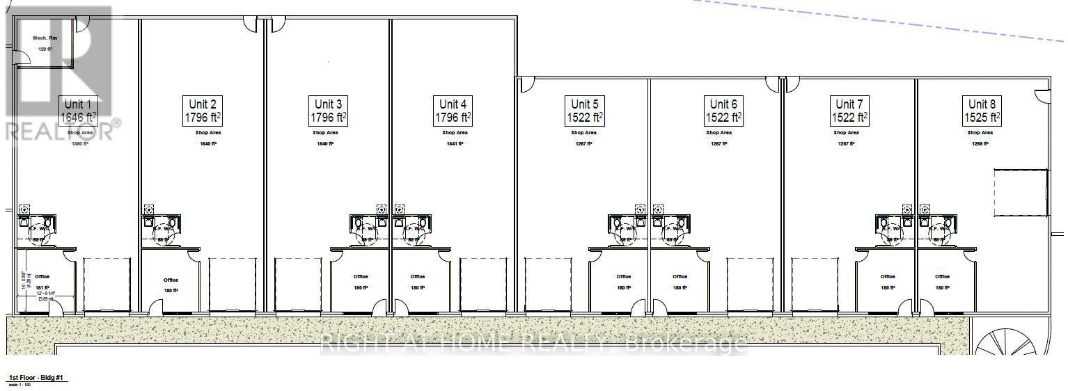
Exclusive Opportunity to Lease at Brand New Class A Flex Industrial Business Park in St. Catharines. Easy access to Glendale Ave, 3.5km (5 Mins) from QEW or 2.0 km from Hwy 406. Each space to be equipped with warehouse, office space and washroom. Also features 3-phase power, 18 - 22' clear height, 10'x12' grade level overhead doors. E2 Zoning allows for many uses such as service based businesses, contractor/trades, light manufacturing & production, select automotive related and recreational uses like specialty gyms or indoor playgrounds. Multiple Units ranging from approx. 1,500 SF to 1,800 SF. Units can be combined into larger unit sizes such as 3,000 SF, 5,000 SF or even larger. The property offers premium frontage and high visibility on Glendale Ave with quick access to QEW, U.S. border and Niagara Region. Occupancy Spring 2027. (id:4555)

PROPERTY SPECS

Lease $16
City St. Catharines, Ontario
Address 427 Glendale Avenue
Listing ID X12714430
Style Multi-Tenant Industrial
Land Size 28000
Type Industrial/Commercial
Status For Lease

EXTENDED FEATURES

Subtype Industrial Ownership Leasehold Heating / Cooling Forced air, Natural gas



team photo
Windsor: 519-903-9355
Toronto: 905-220-7333
Office: 905-335-3042

REQUEST MORE INFORMATION

Grocery Stores
Schools
Restaurants
Gas Stations
Banks
Parks
Transit
Police
Fire Station
Place of Worship
Please select an amenity above to view a list.





team photo

Connect with Us

Loading...