Skip the navigation and jump to this page's content.

Part Of Lot 19 Concession 2 Road Springwater, Ontario

$1,470,000
2 Beds
  2 Full / 1 Half

PROPERTY INFO

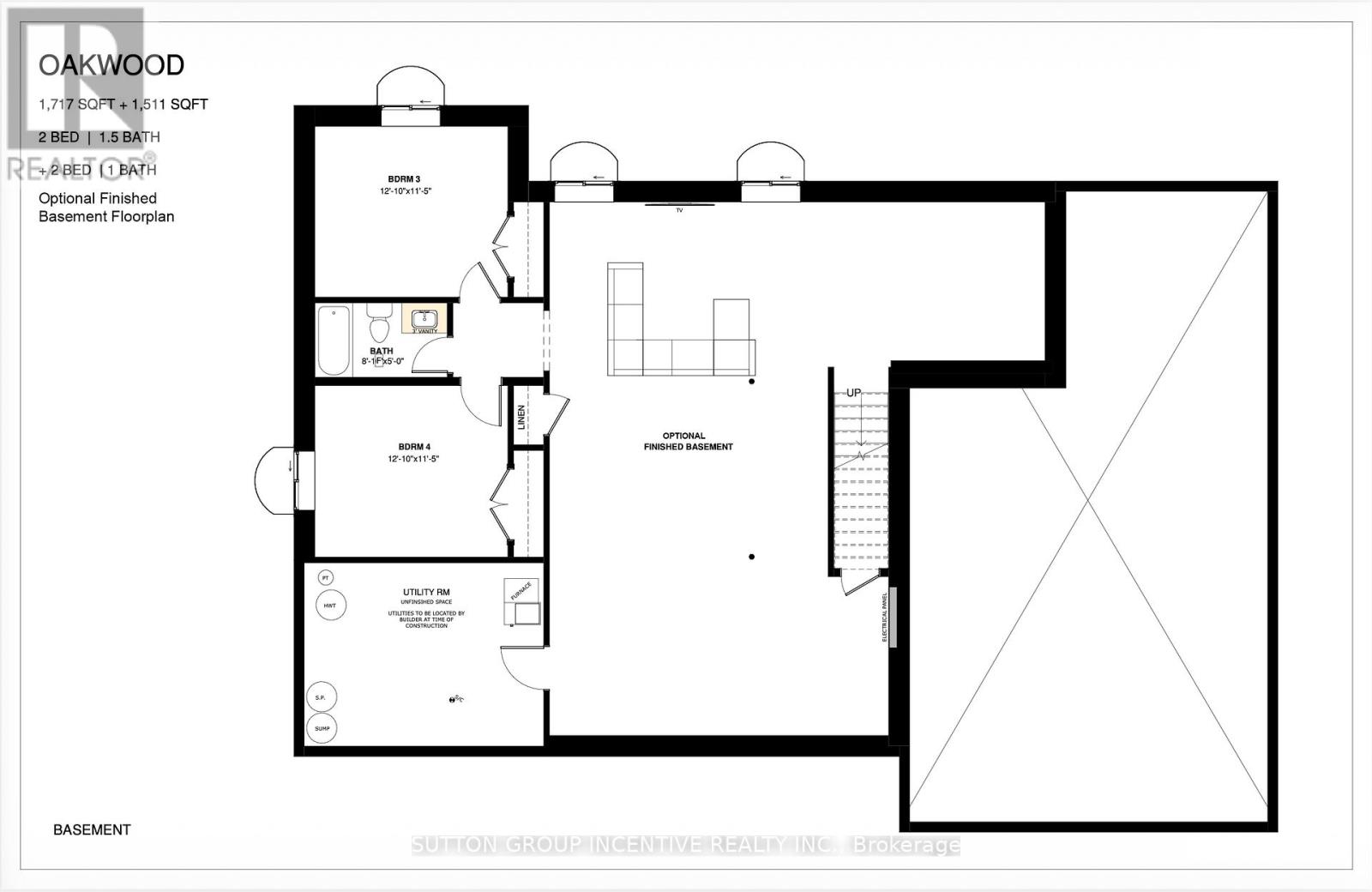
Considering a spring build? The planning process starts now...exceptional opportunity to build your custom estate home on one of four premiumrural ravine lots in the highly desirable community of Midhurst. Opportunities of this calibre are rare, offering the perfect blend of privacy, space,and proximity to Barrie, schools, and everyday amenities. Lots feature ravine settings backing onto Environmental Protection (EP) lands,providing enhanced privacy and a natural backdrop.These listings are offered as design-build opportunities with a reputable local builder withover 30 years of experience. The builder has been granted written authorization by the landowner to market and advertise proposed homes forsale. Any agreement of purchase and sale will be conditional upon the builder successfully securing the Buyer's selected lot. Conceptual floorplans and renderings are provided for illustrative purposes and have been professionally priced using standard luxury builder finish selections.Renderings may depict optional or upgraded exterior features that are not included in the base price. Buyers may select from the builder'sextensive portfolio of thoughtfully designed homes, customize an existing plan, or bring their own plans to be reviewed and priced. The builderoffers a fully integrated design experience, including an in-house BCIN-qualified architectural designer and an in-house interior designer,ensuring a seamless process from concept to completion. Model homes are available for viewing, allowing buyers to experience the builder'sconstruction quality, finishes, and craftsmanship first hand. Lots may also be purchased separately, subject to availability. A rare chance tosecure a custom home in one of Simcoe County's most coveted communities-where design flexibility, proven craftsmanship, and location cometogether. Taxes not yet assessed. Municipal address not yet assigned. (id:4555)

PROPERTY SPECS

Price $1,470,000
City Springwater, Ontario
Bed / Bath 2 / 2 Full, 1 Half
Address Part of Lot 19 Concession 2 Road
Listing ID S12878692
Style Raised bungalow, House
Parking 9.00
Type Residential
Status For Sale

EXTENDED FEATURES

Subtype Single Family Features Wooded area Ownership Freehold Basement Unfinished, N/A Heating / Cooling Forced air, Propane Sewer Septic System Parking 9.00



team photo
Windsor: 519-903-9355
Toronto: 905-220-7333
Office: 905-335-3042

REQUEST MORE INFORMATION

Grocery Stores
Schools
Restaurants
Gas Stations
Banks
Parks
Transit
Police
Fire Station
Place of Worship
Please select an amenity above to view a list.





team photo

Connect with Us

Loading...