Skip the navigation and jump to this page's content.

Part Of Lot 19 Concession 2 Road Springwater, Ontario

$1,664,998
3 Beds
  3 Full / 1 Half

PROPERTY INFO

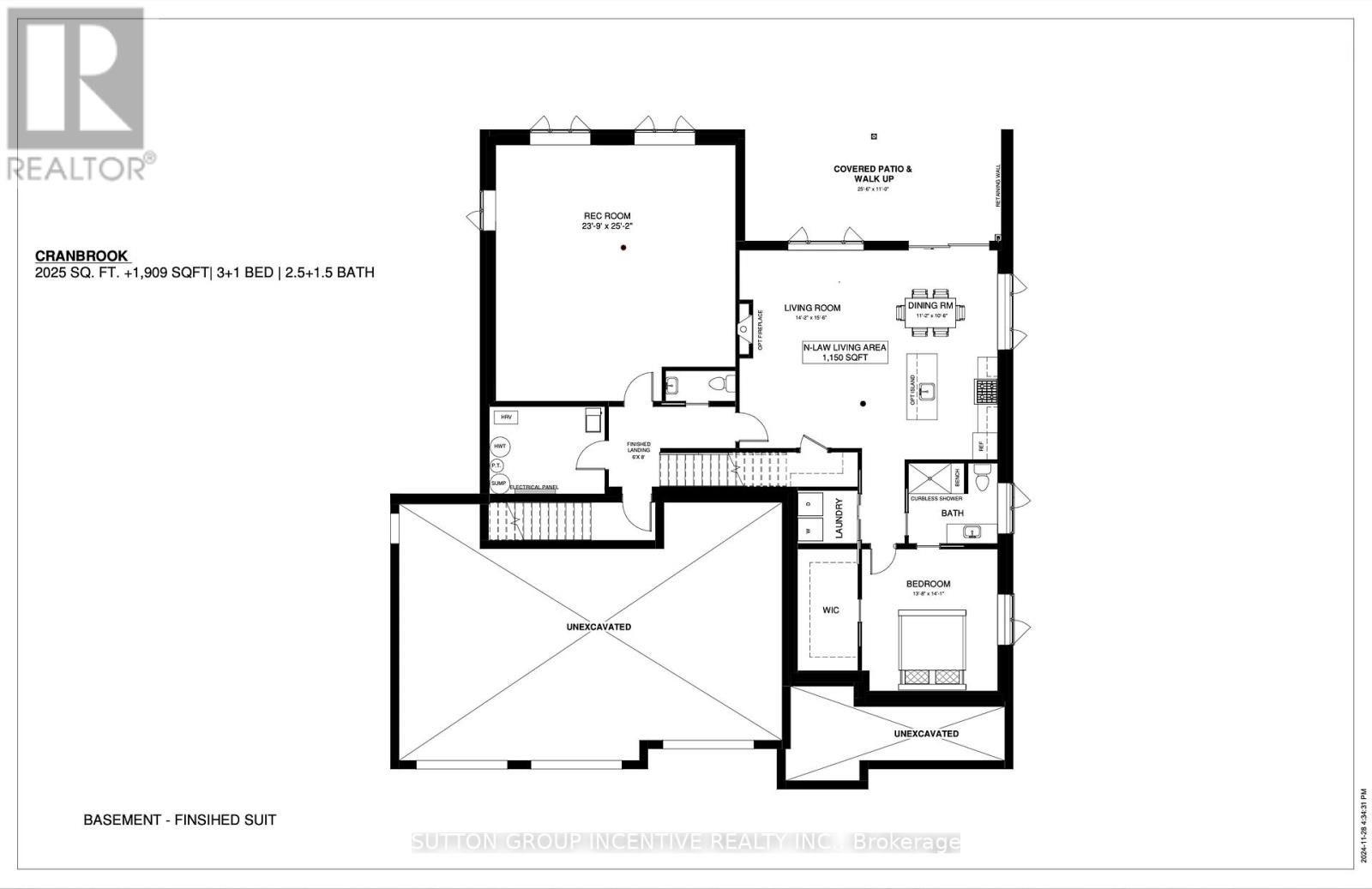
An exceptional opportunity to build your custom estate home on one of three premium rural ravine lots in the highly desirable community of Midhurst. Opportunities of this calibre are rare, offering the perfect blend of privacy, space, and convenience, just minutes to Barrie, schools, and everyday amenities. Each lot features a ravine setting backing onto Environmental Protection (EP) lands, providing enhanced privacy and a beautiful natural backdrop.These properties are offered as design-build opportunities with a reputable local builder with over 30 years of experience. The builder has written authorization from the landowner to market and advertise proposed homes for sale, and any agreement of purchase and sale will be conditional upon the builder successfully securing the Buyer's selected lot. Conceptual floorplans and renderings are provided for illustrative purposes and have been professionally priced using standard luxury builder finish selections. Renderings may depict optional or upgraded features not included in the base price. Buyers may select from the builder's portfolio of homes, customize an existing plan, or bring their own plans to be reviewed and priced. A fully integrated design process is available, including an in-house BCIN-qualified architectural designer and interior designer, ensuring a seamless experience from concept to completion. Model homes are available for viewing. Lots may also be purchased separately, subject to availability. Taxes not yet assessed. Municipal address not yet assigned.If you've ever considered building, this may be the right time to start the conversation. The custom home process often begins months before construction, and exploring your options now can make all the difference. Whether you're thinking about a spring build, planning for the future, or simply curious what's possible, feel free to reach out to see if a custom build could be the right fit for you - now or sometime down the road. (id:4555)

PROPERTY SPECS

Price $1,664,998
City Springwater, Ontario
Bed / Bath 3 / 3 Full, 1 Half
Address Part of Lot 19 Concession 2 Road
Listing ID S12878652
Style Raised bungalow, House
Parking 9.00
Type Residential
Status For Sale

EXTENDED FEATURES

Subtype Single Family Ownership Freehold Basement Unfinished, N/A Heating / Cooling Forced air, Propane Sewer Septic System Parking 9.00



team photo
Windsor: 519-903-9355
Toronto: 905-220-7333
Office: 905-335-3042

REQUEST MORE INFORMATION

Grocery Stores
Schools
Restaurants
Gas Stations
Banks
Parks
Transit
Police
Fire Station
Place of Worship
Please select an amenity above to view a list.





team photo

Connect with Us

Loading...