Skip the navigation and jump to this page's content.

3 Oriole Avenue South Bruce Peninsula, Ontario

PROPERTY INFO

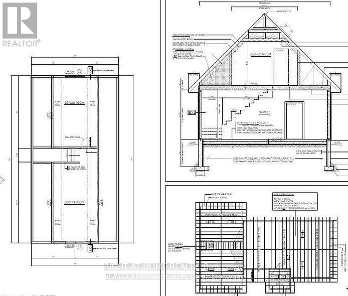
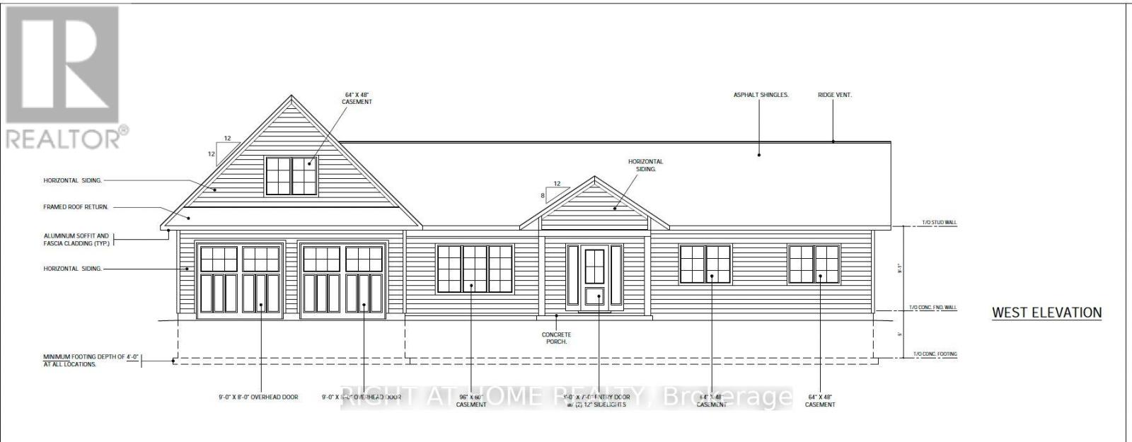
Rare opportunity to own a PREMIUM 100' x 140' building lot in the sought-after lakeside community of Oliphant on the beautiful Bruce Peninsula. Surrounded by mature trees, natural beauty, and established homes and cottages, this property offers the perfect setting for your dream cottage or year-round residence.What truly sets this lot apart it comes with approved architectural drawings and a building permit for a thoughtfully designed 4-bedroom, 3-bathroom bungalow, saving you significant time, money, and months of planning. The seller has already made a substantial investment to have this completed. Simply pull your permit and start building. Zoned R3 with a generous lot size ideal for a variety of building styles. Just a short walk to the shores of Lake Huron and a 2-minute drive to the popular Oliphant North Beach, renowned for its shallow, crystal-clear waters a premier destination for kiteboarding, windsurfing, sailing, and outdoor adventure. Conveniently located a short drive to Sauble Beach and Wiarton.Priced for a quick sale this is exceptional value in today's market. Don't miss your chance to secure one of the best-valued building lots on the Bruce Peninsula (id:4555)

PROPERTY SPECS

Price $139,000
City South Bruce Peninsula, Ontario
Address 3 ORIOLE Avenue
Listing ID X12742132
Type Vacant Land
Status For Sale

EXTENDED FEATURES

Ownership Freehold



team photo
Windsor: 519-903-9355
Toronto: 905-220-7333
Office: 905-335-3042

REQUEST MORE INFORMATION

Grocery Stores
Schools
Restaurants
Gas Stations
Banks
Parks
Transit
Police
Fire Station
Place of Worship
Please select an amenity above to view a list.





team photo

Connect with Us

Loading...