Skip the navigation and jump to this page's content.

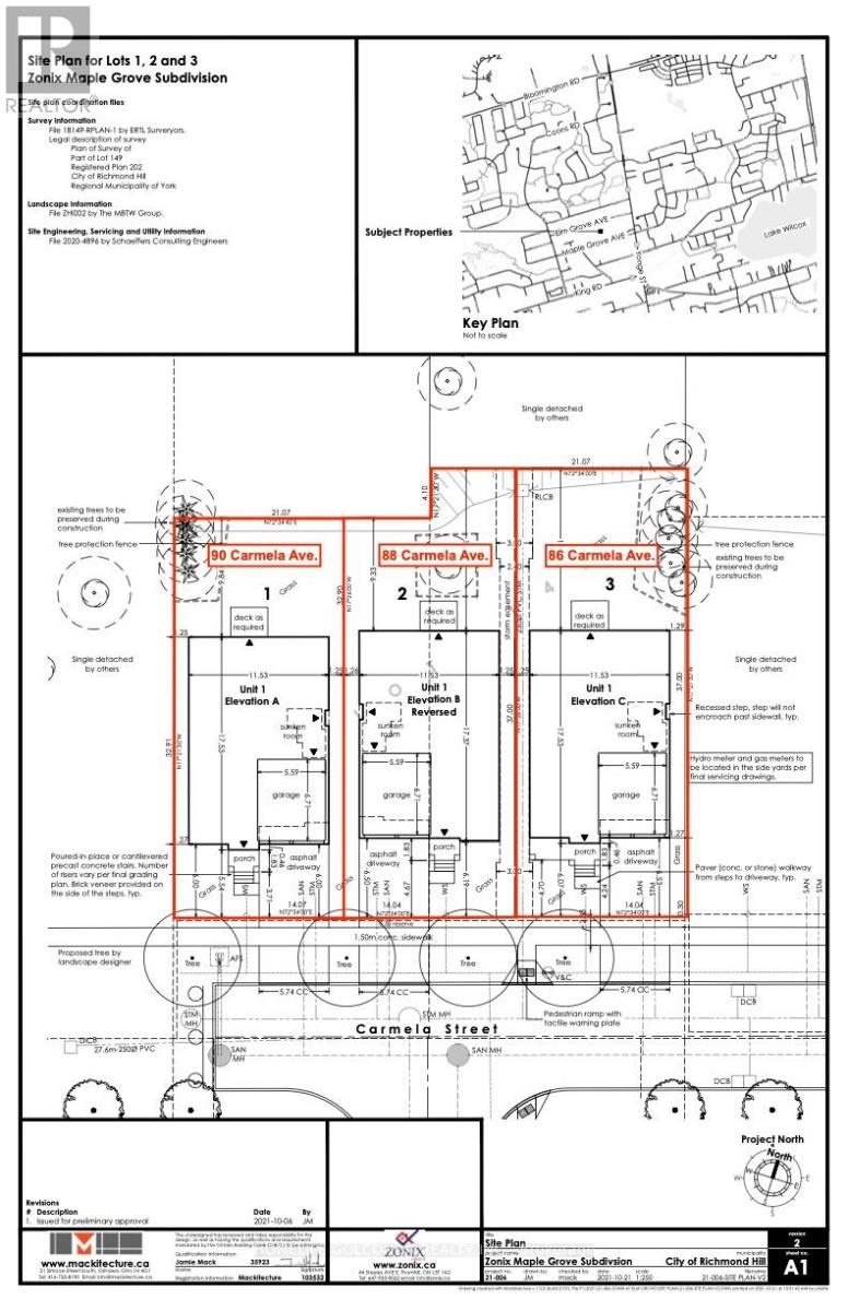
86/88/90 Carmela Avenue Richmond Hill, Ontario

PROPERTY INFO

ATTN BUILDERS AND INVESTORS** These fully-serviced residential 3 lots in the prestigious Oak Ridges community are perfect for builders and homeowners alike, with approved plans for a 3,700 SF detached house on every Lot. The lots have paid servicing and pre-approved architectural plans, including a separate basement entrance. Just apply for your building permit to get started! This premier location offers luxury living with convenient access to top-rated schools, parks, shopping, dining, and major transit routes. The serene neighbourhood, surrounded by mature trees and upscale residences, is ideal for your vision (id:4555)

PROPERTY SPECS

Price $2,188,000
City Richmond Hill, Ontario
Address 86/88/90 Carmela Avenue
Listing ID N12923922
Type Vacant Land
Status For Sale

EXTENDED FEATURES

Ownership Freehold Sewer Sanitary sewer



team photo
Windsor: 519-903-9355
Toronto: 905-220-7333
Office: 905-335-3042

REQUEST MORE INFORMATION

Grocery Stores
Schools
Restaurants
Gas Stations
Banks
Parks
Transit
Police
Fire Station
Place of Worship
Please select an amenity above to view a list.





team photo

Connect with Us

Loading...