Skip the navigation and jump to this page's content.

Briarhill Boulevard Unit# Lot C Richmond Hill, Ontario

PROPERTY INFO

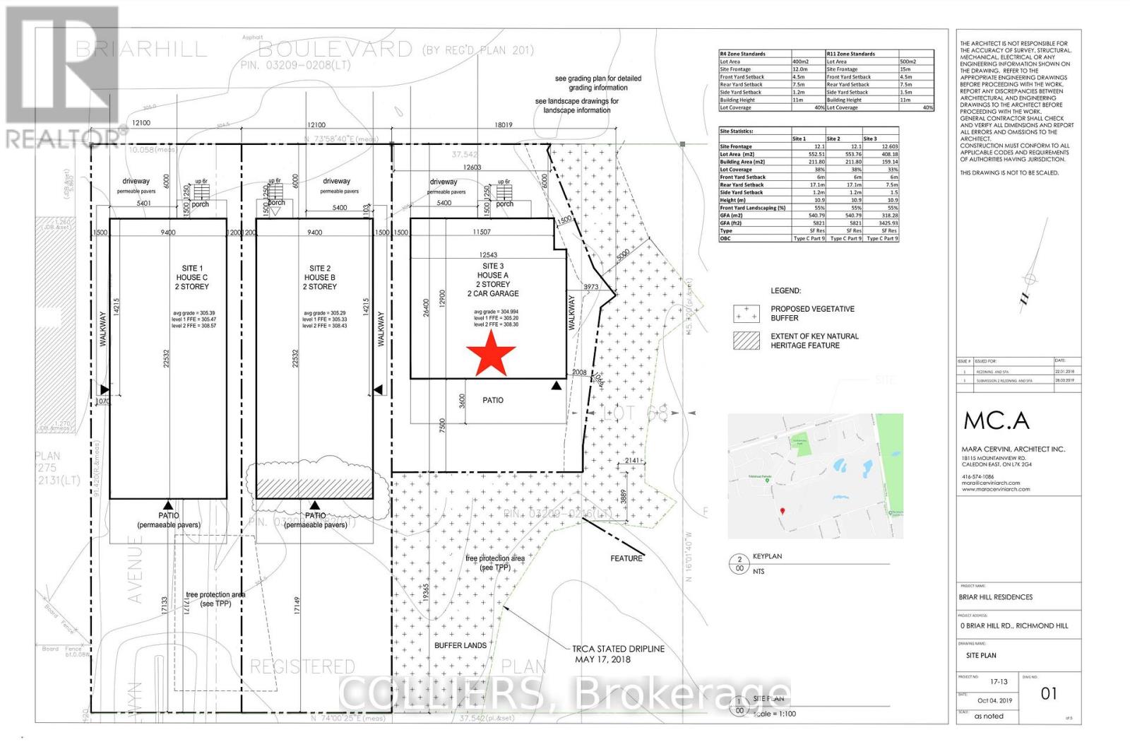
Rare opportunity to acquire a build-ready ravine lot in a mature, fully built-out Richmond Hill neighbourhood. Located at 0-C Briarhill Blvd, this premium parcel offers privacy, natural views, and exceptional certainty. This is a true turnkey opportunity ideal for builders or end users seeking a custom home site in a prime Richmond Hill location. (id:4555)

PROPERTY SPECS

Price $585,000
City Richmond Hill, Ontario
Address Briarhill Boulevard Unit# Lot C
Listing ID N12743550
Type Vacant Land
Status For Sale

EXTENDED FEATURES

Ownership Freehold



team photo
Windsor: 519-903-9355
Toronto: 905-220-7333
Office: 905-335-3042

REQUEST MORE INFORMATION

Grocery Stores
Schools
Restaurants
Gas Stations
Banks
Parks
Transit
Police
Fire Station
Place of Worship
Please select an amenity above to view a list.





team photo

Connect with Us

Loading...