Skip the navigation and jump to this page's content.

401 Main Street Port Dover, Ontario

PROPERTY INFO

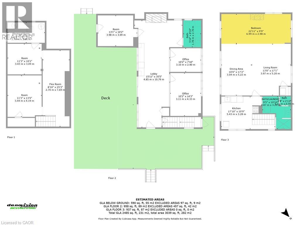
This professional office building in the heart of Port Dover, offers unparalleled visibility in a high-traffic area with exposure on two streets. Its prime location makes it an ideal opportunity for businesses looking to maximize accessibility and brand presence. Live upstairs and lease the main floor. The property features a spacious studio apartment, perfect for owner occupancy or rental income, and a huge outdoor composite deck that provides a great space for meetings, breaks, or entertaining. With eight dedicated parking spaces, convenience is guaranteed for both staff and clients—an asset rarely found in such a sought-after location. With its versatile layout, excellent amenities, and unbeatable positioning, this property is ready to take your business to the next level. Don’t miss out on this incredible opportunity—check out the virtual tour & schedule a viewing today! (id:4555)

PROPERTY SPECS

Price $899,900
City Port Dover, Ontario
Address 401 MAIN Street
Listing ID 40797987
Square Footage 2015
Parking 5.00
Type Industrial/Commercial
Status For Sale

EXTENDED FEATURES

Subtype Other Ownership Freehold Basement Full Sewer Municipal sewage system Parking 5.00



team photo
Windsor: 519-903-9355
Toronto: 905-220-7333
Office: 905-335-3042

REQUEST MORE INFORMATION

Grocery Stores
Schools
Restaurants
Gas Stations
Banks
Parks
Transit
Police
Fire Station
Place of Worship
Please select an amenity above to view a list.





team photo

Connect with Us

Loading...