Skip the navigation and jump to this page's content.

180 Fares Street Port Colborne, Ontario

PROPERTY INFO

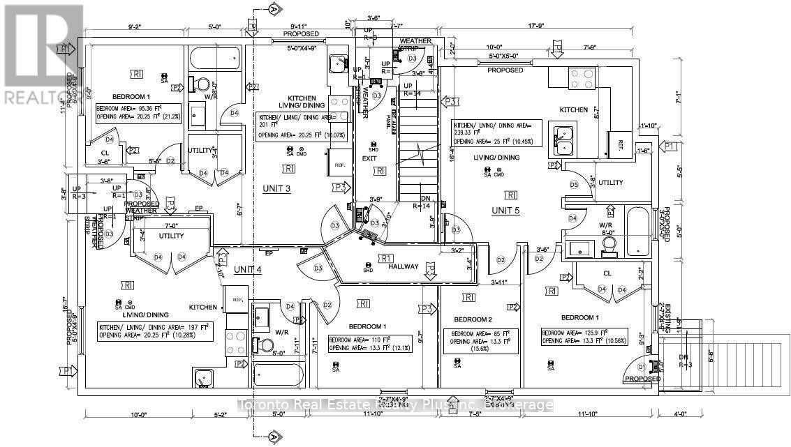
180 Fares St is prepped for development, with Approved Building Bermits already in place for four 2-bedroom units and four 1-bedroom units. Most of the framing is already completed as per new building permit drawings and new windows already installed. The property sits in a high-potential neighborhood that is on the brink of major transformation. It's set to benefit from several major upcoming projects, including the future City Waterfront Centre, a year-round multi-use hub that will serve cruise ship guests and host community events. Just around the corner, Rankin is wrapping up construction on a 9-storey, 72-unit condo building. Plus, the Marina District is being reimagined with city plans to create 5 to 8 new urban blocks here, with commercial space on the ground floor, residential units above, and new walking paths, parks, and event spaces throughout. The location is unbeatable walking distance to downtown, grocery stores, restaurants, the canal, and more. This is a prime investment opportunity in a rapidly evolving area. Property is being sold as is condition. (id:4555)

PROPERTY SPECS

Price $679,000
City Port Colborne, Ontario
Address 180 Fares Street
Listing ID X12329844
Style Other
Parking 6.00
Type Multi-Family
Status For Sale

EXTENDED FEATURES

Ownership Freehold Heating / Cooling Other Sewer Sanitary sewer Parking 6.00



team photo
Windsor: 519-903-9355
Toronto: 905-220-7333
Office: 905-335-3042

REQUEST MORE INFORMATION

Grocery Stores
Schools
Restaurants
Gas Stations
Banks
Parks
Transit
Police
Fire Station
Place of Worship
Please select an amenity above to view a list.





team photo

Connect with Us

Loading...