Skip the navigation and jump to this page's content.

164 Applewood Street Plattsville, Ontario

$1,034,900
4 Beds
  3 Full / 1 Half

PROPERTY INFO

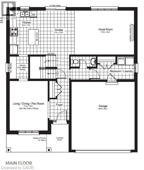
PRICE IMPROVED - To be built! This spectacular 2 storey family home offers 4 bedrooms and a nearly 2400 sqft of thoughtful layout. With 50 feet of frontage, this home stands boldly on approach. Beautiful brick on entire 1st floor. The covered front porch is grand and inviting. Step inside to a carpet free main floor featuring a large bright office on your right for those who work from home. The kitchen, dining and great room blend nicely for keeping an eye on little ones or maintaining conversations with your guests. The upper floor has it all! Spacious bedrooms and bathrooms. The basement is open and ready for your personal touch. Opportunities are endless on a property of this caliber. Presentation center open every Saturday and Sunday 1-4pm located at 203 Applewood Street Plattsville. (id:4555)

PROPERTY SPECS

Price $1,034,900
City Plattsville, Ontario
Bed / Bath 4 / 3 Full, 1 Half
Address 164 APPLEWOOD Street
Listing ID 40791463
Style 2 Level, House
Construction Wood frame
Parking 4.00
Type Residential
Status For Sale

EXTENDED FEATURES

Subtype Single Family Community Features Quiet Area, School Bus, Community Centre Features Country residential, Sump Pump Ownership Freehold Basement Unfinished, Full Heating / Cooling Forced air, Natural gas Sewer Municipal sewage system Parking 4.00



team photo
Windsor: 519-903-9355
Toronto: 905-220-7333
Office: 905-335-3042

REQUEST MORE INFORMATION

Grocery Stores
Schools
Restaurants
Gas Stations
Banks
Parks
Transit
Police
Fire Station
Place of Worship
Please select an amenity above to view a list.





team photo

Connect with Us

Loading...